
ohne-makler.net - Immobilien selbst vermarkten
Privat von Robert Sonntag
Kontaktiere den Anbieter schriftlich, es ist keine Telefonnummer hinterlegt.
Preise & Kosten
Provision für Käufer
provisionsfrei
Lage
Sie wohnen in bevorzugter Lage in einem neuen Wohngebiet unmittelbar in erster Baulinie zum Schweriner See im neuen Stadtgebiet zwischen der Werdervorstadt und dem Stadthafen von Schwerin.
In ca. 15 Min. erreichen Sie zu Fuß das Stadtzentrum, das Schloss und den Schlosspark oder das Museum und Theater.
Die...
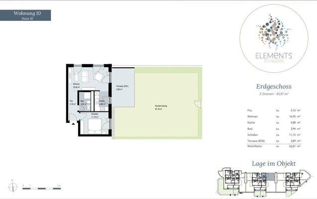
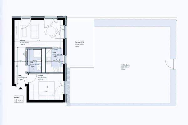
Die Wohnung
Wohnungslage
Erdgeschoss
Bezug
nach Absprache
Derzeitige Nutzung
vermietet
Wohnanlage
Energie & Heizung
Warum sehe ich diese Anzeige? – Du siehst diese Anzeige basierend auf Ihrer Navigation auf unserer Website und den Suchkriterien, die du verwendet hast.
Energieausweistyp
Bedarfsausweis
Gebäudetyp
Wohngebäude
Effizienzklasse
C
Endenergiebedarf
89,00 kWh/(m²·a)
Weitere Energiedaten
Energieträger
Fernwärme
Heizungsart
Fußbodenheizung
Details
Objektbeschreibung
Diese attraktive und voll ausgestattete 2-Zimmer-Neubauwohnung liegt im Erdgeschoss, hat eine große Terrasse, einen Garten und einen Kellerraum. Der Tiefgaragenplatz ist wie auch das Inventar im Kaufpreis enthalten.
Diese Eigentumswohnung ist auch als Kapitalanlage geeignet, weil sie als genehmigte Ferienwohnung in einer...
Ausstattung
Terrasse, Garten, Keller, Fahrstuhl, Duschbad, Einbauküche, Barrierefrei, Parkett, Fliesen
Bemerkungen:
Die Wohnung ist Erstbezug, hat eine Fußbodenheizung, Wärmeschutzverglasung und Außenjalousien. Die bodentiefen Fenster sorgen für viel Licht in allen Räumen. Ein Insektenschutz ist im Wohn- und Schlafbereich...
Preisinformation
1 Tiefgaragenstellplatz
Weitere Informationen
Sonstiges
Heizungsart: Fußbodenheizung
Energieträger: Fernwärme
Makleranfragen nicht erwünscht. Nach § 7 UWG sind unaufgeforderte Kontaktaufnahmen durch Makler ohne ausdrückliche Einwilligung des Empfängers verboten!
ohne-makler (OM) ist weder Anbieter noch Vermittler der Immobilie. OM betreibt eine...
Dokumente
Anbieter der Immobilie
ohne-makler.net - Immobilien selbst vermarkten
Humboldtstr. 25 A, 21509 Glinde
Privat von Robert Sonntag
Dein Ansprechpartner
Kontaktiere den Anbieter schriftlich, es ist keine Telefonnummer hinterlegt.
Online-ID: 2n8h95j
Referenznummer: 424981
Finde Angebote wie dieses
Hier geht es zu unserem Impressum, den Allgemeinen Geschäftsbedingungen, den Hinweisen zum Datenschutz und nutzungsbasierter Online-Werbung.