
Aigner Immobilien GmbH
Herr Thomas Hagn
+49 ···
Nr. anzeigenPreise & Kosten
Provision für Käufer
3,57% inkl. MwSt.
Die Käuferprovision beträgt 3,57% inkl. gesetzlicher Mehrwertsteuer vom wirtschaftlichen Kaufpreis. Unsere Angebote erfolgen freibleibend und unverbindlich. Irrtum und Zwischenverkauf bleiben vorbehalten.
Lage
Das Objekt befindet sich in ruhiger Wohnlage im beliebten Freisinger Stadtteil Lerchenfeld. Die Umgebung ist geprägt von gepflegten Wohnhäusern, viel Grün und einer angenehmen Nachbarschaftsatmosphäre. Das Stadtzentrum von Freising ist in wenigen Minuten mit dem Auto erreichbar, ebenso wie Einkaufsmöglichkeiten, Schulen...
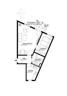
Die Wohnung
Wohnungslage
Erdgeschoss
Bezug
nach Vereinbarung
Wohnanlage
Energie & Heizung
Warum sehe ich diese Anzeige? – Du siehst diese Anzeige basierend auf Ihrer Navigation auf unserer Website und den Suchkriterien, die du verwendet hast.
Energieausweistyp
Verbrauchsausweis
Gebäudetyp
Wohngebäude
Baujahr laut Energieausweis
1995
Gültigkeit
bis 31.03.2035
Endenergieverbrauch
94,50 kWh/(m²·a)
Weitere Energiedaten
Energieträger
Fernwärme
Heizungsart
Zentralheizung
Details
Objektbeschreibung
In der beschaulichen Stadt Freising erwartet Sie eine charmante 2-Zimmer Wohnung mit einer durchdachten Raumaufteilung und einem angenehmen Ambiente. Das Objekt befindet sich in einem ruhigen und familienfreundlichen Gebiet, welches nicht nur für eine angenehme Wohnatmosphäre sorgt, sondern auch einen friedlichen Rückzugsort...
Ausstattung
- Laminatboden in Wohn- und Schlafraum
- Einbauküche (2023) inkl. Geschirrspüler, Herd, Backofen, Dunstabzug
- innenliegendes Badezimmer mit Wanne
- Wintergarten
- Kellerabteil
- erneuerter Duplexstellplatz
- Glasfaser bereits vorhanden
- gut geschnittener Grundriss
- heller Wohnbereich
Preisinformation
1 Garagenstellplatz, Kaufpreis: 15.000,00 EUR
Weitere Informationen
Sonstiges
Heizungsart: Zentralheizung
Befeuerung/Energieträger: Fernwärme
Energieausweistyp: Verbrauchsausweis
Energiekennwert: 94,5 kWh/(m²*a)
Energieeffizienzklasse: C
Baujahr: 1995
Kostenlose Online-Bewertung - https://aigner-immobilien.de/wertermittlung-online-muenchen/
Zu unseren...
Anbieter der Immobilie
Aigner Immobilien GmbH
Ruffinistraße 26, 80637 München
Online-ID: 2n8fb55
Referenznummer: 43079
Finde Angebote wie dieses
Hier geht es zu unserem Impressum, den Allgemeinen Geschäftsbedingungen, den Hinweisen zum Datenschutz und nutzungsbasierter Online-Werbung.