

DIVARES GmbH & Co. KG
Frau Sabine Voigt
+49 ···
Nr. anzeigenPreise & Kosten
Provision für Käufer
5,95 %
Lage
+ Lage am Stadtteilzentrum Bühlau
+ Öffentlicher Nahverkehr direkt vorm Haus (Bus, Bahn)
+ Einrichtungen des täglichen Bedarfs fußläufig bequem erreichbar
+ Dresden Zentrum: ca. 8 km / 15 min.
Das Renditeobjekt
Kategorie
Wohnanlage
Baujahr
1996
Frei ab
vermietet
Energie & Heizung
Warum sehe ich diese Anzeige? – Du siehst diese Anzeige basierend auf Ihrer Navigation auf unserer Website und den Suchkriterien, die du verwendet hast.
Energieausweistyp
Verbrauchsausweis
Gebäudetyp
Wohngebäude
Baujahr laut Energieausweis
1996
Wesentliche Energieträger
GAS
Gültigkeit
bis 20.12.2027
Effizienzklasse
B
Endenergieverbrauch
71,10 kWh/(m²·a)
Weitere Energiedaten
Energieträger
Gas
Heizungsart
Zentralheizung
Details
Objektbeschreibung
+ Neubau, Baujahr ca. 1996
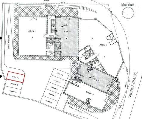
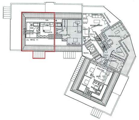
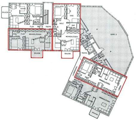
+ 9 Wohnungen (2 bis 3 Zimmer, 48 bis 79 m²)
+ 2 Gewerbeeinheiten (48 und 99 m² Büro)
+ 36 % Anteil in der WEG
+ kein Instandhaltungsrückstau, Strangsanierung abgeschlossen 2025
Ausstattung
+ ein von zwei Treppenhäusern mit Aufzug
+ Balkon, Loggia oder Dachterrasse
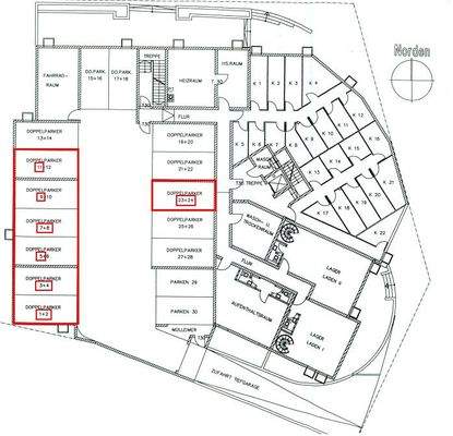
+ 11 TG-Duplexparker (Fahrbleche saniert), 1 Außenstellplatz
+ Gas-Zentralheizung
+ Waschmaschinen- und Trockenräume
+ normaler Ausstattungsgrad, teilweise entsprechend Baujahr
+ Fenster mit Rollläden
Preisinformation
1 Stellplatz
Nettorendite Ist in %: 4,73
Ist-Mieteinnahmen pro Jahr: 75.718,08 EUR
Weitere Informationen
Sonstiges
Es liegt ein Energieverbrauchsausweis vor.
Dieser ist gültig bis 20.12.2027.
Endenergieverbrauch beträgt 71.10 kwh/(m²*a).
Wesentlicher Energieträger der Heizung ist Gas.
Das Baujahr des Objekts lt. Energieausweis ist 1996.
Die Energieeffizienzklasse ist B.
Hinweis: Eine der neun Wohnungen...
Anbieter der Immobilie

Online-ID: 2n8ce5j
Referenznummer: 09844
Finde Angebote wie dieses
Hier geht es zu unserem Impressum, den Allgemeinen Geschäftsbedingungen, den Hinweisen zum Datenschutz und nutzungsbasierter Online-Werbung.