WBG Fortschritt Sondershausen eG

Frau Claudia Liesegang

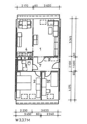
3-Raum-Wohnung direkt am Park in der Innenstadt von Sondershausen

€ 308,75
Kaltmiete zzgl. NK
51,55 m²
Wohnfläche ca.
3
Zimmer

Der Anbieter dieses Objekts hat gegenüber der AVIV Germany GmbH als Betreiber dieses Online-Marktplatzes erklärt, nicht als Unternehmer im Sinne des § 1 KSchG zu handeln. Die im Verbraucherschutzrecht der Union verankerten Verbraucherrechte (insbesondere Informationspflichten und Rücktritts- bzw. Widerrufsrechte) finden auf den Vertrag zwischen dem Anbieter des Objekts und Ihnen (dem Interessenten) keine Anwendung.

Gewerblicher Anbieter

Der Anbieter dieses Objekts hat gegenüber der AVIV Germany GmbH als Betreiber dieses Online-Marktplatzes erklärt, als Unternehmer im Sinne des § 1 KSchG zu handeln.

AdresseAm Schlosspark 15
99706 Sondershausen 
Auf Karte ansehen

Preise & Kosten

Kaltmiete

zzgl. Nebenkosten

€ 308,75

Kaution

Geschäftsanteile

Lage

Sondershausen ist eine Mittelstadt, gelegen im Tal der „Wipper“, eingerahmt von den Höhenzügen der Hainleite und Windleite. Sie ist die Kreisstadt des Kyffhäuserkreises und geprägt durch ihre reiche Musiktradition und lange Bergbaugeschichte.

Das Flair als ehemalige Fürstenresidenz bestimmt das Stadtbild mit dem...

Mehr anzeigen

Die Wohnung

Wohnungslage

4. Geschoss (Dachgeschoss)

Derzeitige Nutzung

frei

  • Bad mit Wanne
  • Böden: Kunststoffboden
  • Fenster: Kunststofffenster
  • Zustand: renoviert / saniert
  • Weitere Räume: Kelleranteil
  • Anschlüsse: DVB-T/Antenne

Wohnanlage

  • Baujahr: 1988
  • Serviceleistungen: Reinigungsservice

Energie & Heizung

A+
A
B
C
D
E
F
G
H
0 25 50 75 100 125 150 175 200 225 250 +

Energieausweistyp

Verbrauchsausweis

Gebäudetyp

Wohngebäude

Baujahr laut Energieausweis

1988

Wesentliche Energieträger

Fernwärme

Gültigkeit

22.08.2018 bis 22.08.2028

Effizienzklasse

C

Endenergieverbrauch

85,00 kWh/(m²·a) - Warmwasser enthalten

Weitere Energiedaten

Energieträger

Fernwärme

Heizungsart

Zentralheizung

Details

Objektbeschreibung

Objektbeschreibung
Die Wohnung liegt mitten in der Innenstadt von Sondershausen. Hier finden Sie alle Geschäfte des täglichen Bedarfs sowie Ärzte, Apotheken, Banken. Der Busbahnhof ist leicht fußläufig erreichbar. Der Park und die Zentrumsnähe bieten viele Möglichkeiten für Freizeitaktivitäten. Die Galerie Am Schlossberg...

Mehr anzeigen

Weitere Informationen

Besichtigungstermine
Wenn Sie weitere Informationen wünschen hilft Ihnen Frau Liesegang unter der Telefonnummer 03632/710965 gerne weiter.

Informieren Sie sich auch über unsere Wohnungsangebote an unseren Standorten in Greußen und Ebeleben.

Service
Die Hausreinigung und der Winterdienst werden durch einen...

Mehr anzeigen

Dokumente

file_pdfEnergieausweisangle_right

Anbieter der Immobilie

Partner

WBG Fortschritt Sondershausen eG

im Durchschnitt  3,80  Sterne
(bei 2 Bewertungen)

Ferd.-Schlufter-Str. 1, 99706 Sondershausen

Geschäftszeiten
user

Frau Claudia Liesegang

Dein Ansprechpartner

Anbieter-Profil Anbieter-Impressum

Online-ID: 2n8b85d

Finde Angebote wie dieses

imageimageimage

Hier geht es zu unserem Impressum, den Allgemeinen Geschäftsbedingungen, den Hinweisen zum Datenschutz und nutzungsbasierter Online-Werbung.