
Crozilla.com
SPATIUM real estate
+38 ···
Nr. anzeigenPreise & Kosten
Provision für Käufer
Bitte beachte, das Angebot kann bei Vertragsabschluss die Zahlung einer Provision beinhalten. Weitere Informationen erhältst Du vom Anbieter.
Die Wohnung
Wohnungslage
1. Geschoss
Wohnanlage
Details
Objektbeschreibung
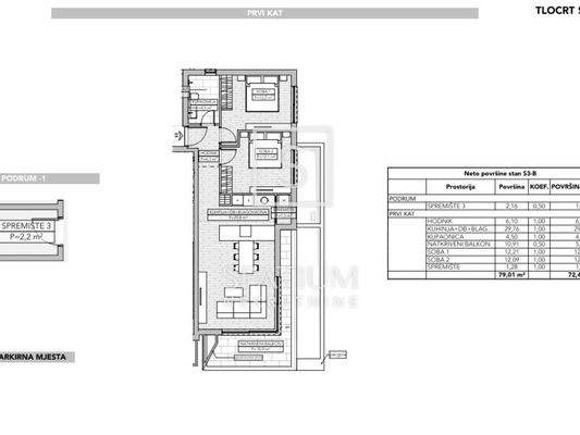
NJIVICE, INSEL KRK, in einem exklusiven Angebot ist eine zweistöckige Wohnung mit Pool in einem kleinen Neubau. Die Fläche beträgt 104,45 m2 und verteilt sich wie folgt: Küche mit Esszimmer und Wohnzimmer 38,55 m2, zwei Schlafzimmer von 11,34 und 11,52 m2, zwei Badezimmer von 5,48 und 4,78 m2, Flur 2,8 m2, Abstellraum 0,84 m2...
Weitere Informationen
Stichworte
Anzahl der Schlafzimmer: 2, Anzahl der Badezimmer: 1, 1 Etagen
Anbieter der Immobilie
Crozilla.com
Nova cesta 60, 10000 ZAGREB
Online-ID: 2n88s59
Referenznummer: 19190827_0
Finde Angebote wie dieses
Hier geht es zu unserem Impressum, den Allgemeinen Geschäftsbedingungen, den Hinweisen zum Datenschutz und nutzungsbasierter Online-Werbung.