

LBS Immobilien, Büro Reichenau
Herr Manuel Palmitesta
+49 ···
Nr. anzeigenPreise & Kosten
Provision für Käufer
provisionsfrei
Lage
Allensbach, malerisch am Gnadensee gelegen, ist ein charmantes Juwel des westlichen Bodensees. Die Gemeinde zählt rund 7.300 Einwohner und zeichnet sich durch eine hervorragende Infrastruktur aus. Dank seiner Lage direkt am Wasser des Bodensees bietet Allensbach vielfältige Wassersportmöglichkeiten und Erholungsmöglichkeiten...
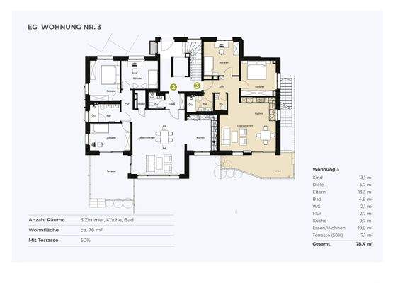
Die Wohnung
Wohnungslage
Erdgeschoss
Bezug
sofort
Wohnanlage
Energie & Heizung
Warum sehe ich diese Anzeige? – Du siehst diese Anzeige basierend auf Ihrer Navigation auf unserer Website und den Suchkriterien, die du verwendet hast.
Energieausweistyp
Bedarfsausweis
Gebäudetyp
Wohngebäude
Baujahr laut Energieausweis
2024
Wesentliche Energieträger
Elektroenergie
Gültigkeit
20.11.2024 bis 20.11.2034
Effizienzklasse
A+
Endenergiebedarf
15,00 kWh/(m²·a)
Weitere Energiedaten
Energieträger
Elektro
Haustyp
KfW 40
Heizungsart
Fußbodenheizung, Luft-/Wasser-Wärmepumpe
Details
Objektbeschreibung
Kurzbeschreibung
Modern, lichtdurchflutet und in traumhafter Lage: Diese stilvolle 3,5-Zimmer-Neubauwohnung in Allensbach bietet höchsten Wohnkomfort in schöner Lage - perfekt für alle, die das Besondere suchen.
Objekt
In ruhiger, erhöhter Lage von Allensbach erwartet Sie diese hochwertig ausgestattete...
Ausstattung
Individuelle Ausstattungsmerkmale:
- teilweise Seesicht
- Photovoltaikanlage
- elektrische Rollläden
- abgeschlossene Fahrradabstellmöglichkeit
- Barrierefreiheit im gesamten Objekt
- Badezimmer mit Dusche und WC
- Außenstellplatz direkt am Haus
- 3-fach verglaste Fenster
- elektrische...
Preisinformation
1 Stellplatz, Kaufpreis: 12.500,00 EUR
Weitere Informationen
Sonstiges
Verbraucherinformationen - https://lbs-immosw.de/verbraucherinfo/
Stichworte
Stellplatz vorhanden, Anzahl der Schlafzimmer: 2, Anzahl der Badezimmer: 1, Anzahl der separaten WCs: 1, Anzahl Balkone: 1, Anzahl Terrassen: 1, Balkon-Terrassen-Fläche: 7,10 m², Bundesland: Baden-Württemberg, 4...
Anbieter der Immobilie

Online-ID: 2n87l5n
Referenznummer: 186-00444-EG Wohnung Nr. 3
Finde Angebote wie dieses
Hier geht es zu unserem Impressum, den Allgemeinen Geschäftsbedingungen, den Hinweisen zum Datenschutz und nutzungsbasierter Online-Werbung.