
Reber Immobilien Service GmbH
Herr Frank Reber
004 ···
Nr. anzeigenPreise & Kosten
Provision für Käufer
3,57 % inkl. MwSt.
Lage
Das Objekt befindet sich in Eppstein im Vordertaunus.
Der Kindergarten, die Grundschule und eine weiterführende Gesamtschule sind direkt vor Ort.
Eine gute Infrastruktur mit Geschäften, Ärzten und Apotheken sowie ein ausgereiftes Netz öffentlicher Verkehrsmittel kommen den Eppsteiner Bewohnern zu Gute. Der...
Die Wohnung
Wohnanlage
Energie & Heizung
Warum sehe ich diese Anzeige? – Du siehst diese Anzeige basierend auf Ihrer Navigation auf unserer Website und den Suchkriterien, die du verwendet hast.
Energieausweistyp
Verbrauchsausweis
Gebäudetyp
Wohngebäude
Baujahr laut Energieausweis
1969
Wesentliche Energieträger
OEL
Gültigkeit
bis 20.01.2031
Effizienzklasse
E
Endenergieverbrauch
150,10 kWh/(m²·a)
Weitere Energiedaten
Energieträger
Öl
Heizungsart
Zentralheizung
Details
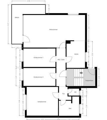
Objektbeschreibung
Diese ansprechend geschnittene 4-Zimmer-Wohnung im Hochparterre überzeugt durch eine durchdachte Raumaufteilung, helle Wohnräume und einen besonders reizvollen Ausblick auf die Burg Eppstein.
Der zentrale Wohnbereich bildet das großzügige Wohnzimmer mit integriertem Essbereich und offen gestaltetem Küchenbereich...
Ausstattung
- Balkon mit Blick zur Burg
- Stellplatz
- Gäste-WC
- eigener Kellerraum
Preisinformation
1 Stellplatz
Anbieter der Immobilie

Reber Immobilien Service GmbH
Hauptstraße 47, 65817 Eppstein
Online-ID: 2n83y5y
Referenznummer: 6502
Finde Angebote wie dieses
Hier geht es zu unserem Impressum, den Allgemeinen Geschäftsbedingungen, den Hinweisen zum Datenschutz und nutzungsbasierter Online-Werbung.