
FALC Immobilien Karlsdorf
Herr Dieter Haselmayer
072 ···
Nr. anzeigenPreise & Kosten
Provision für Käufer
provisionsfrei
Lage
Die Gemeinde Baiertal ist ein Ortsteil der Großen Kreisstadt Wiesloch. Sie liegt im nordwestlichen Kraichgau und etwa 15 km südlich von Heidelberg.
Von Baiertal mit ca. 4.500 Einwohnern (Wiesloch ca. 26.500), sind die umliegenden Städte und Zentren (z. B. Bruchsal 27 km, Speyer 25 km, Mannheim 35 km, Karlsruhe 50 km)...
Die Wohnung
Wohnungslage
1. Geschoss
Wohnanlage
Energie & Heizung
Warum sehe ich diese Anzeige? – Du siehst diese Anzeige basierend auf Ihrer Navigation auf unserer Website und den Suchkriterien, die du verwendet hast.
Weitere Energiedaten
Energieträger
Elektro
Details
Objektbeschreibung
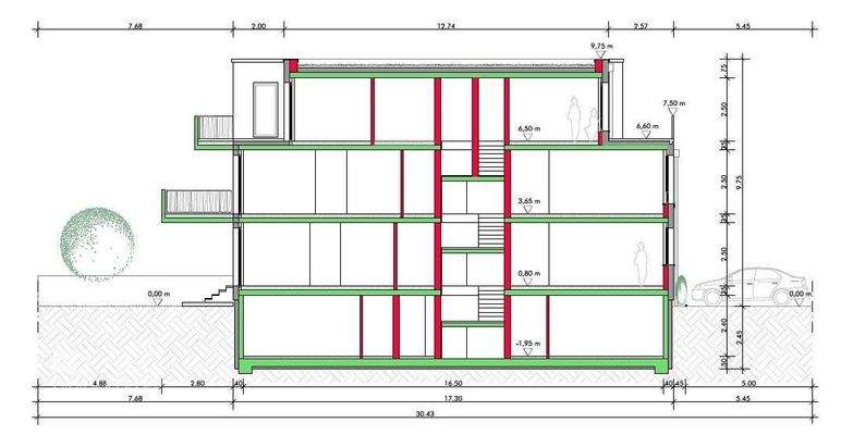
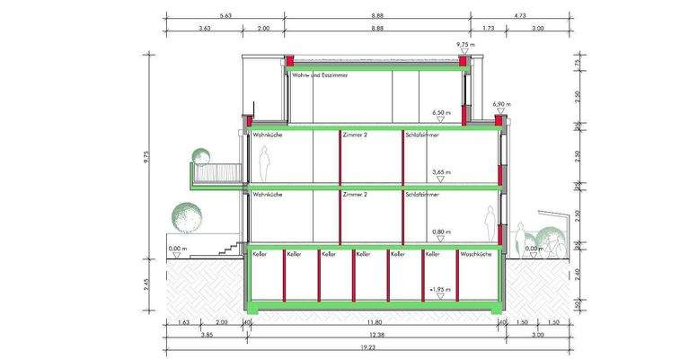
Die hier angebotene 4-Zimmer Wohnung mit der Nummer 4 und 97,3 m² Wohnfläche, bietet noch ein Bad, ein Gäste-WC, einen Balkon und befindet sich im Obergeschoß. Das geplante Mehrfamilienwohnhaus wird in sogenannter Massivbauweise als dreigeschossiges Gebäude mit zurückspringendem Staffelgeschoss als KfW 55 Haus errichtet. Das...
Ausstattung
- KfW-Effizienzhaus 55
- Personenaufzug über alle Geschosse, geeignet für barrierefreie Nutzung, zwei Zugangsseiten.
- Außenwände aus Kalksandsteinen mit Wärmedämmverbundsystem (WDVS)
- 3-fach Isolierverglaste Kunststofffenster
- Fensterbänke Aussen: Aluminium
- Fensterbänke Innen: Kunstwerkstein "Micro...
Weitere Informationen
Sonstiges
Eine Besichtigung lohnt sich auf jeden Fall und ist nach persönlicher Absprache möglich.
Die Objektbeschreibung beruht ganz oder zum Teil auf Angaben des Eigentümers und eigenen Erhebungen. Für die Richtigkeit oder Vollständigkeit übernehmen wir keine Gewähr.
Ich freue mich über Ihre...
Anbieter der Immobilie
FALC Immobilien Karlsdorf
Prof.-A.-Riffel-Str. 9, 76689 Karlsdorf-Neuthard
Online-ID: 2n82b5g
Referenznummer: FALC-DH-80968
Finde Angebote wie dieses
Hier geht es zu unserem Impressum, den Allgemeinen Geschäftsbedingungen, den Hinweisen zum Datenschutz und nutzungsbasierter Online-Werbung.