
City-Residence GmbH
Herr Guido Anders
069 ···
Nr. anzeigenPreise & Kosten
zzgl. Nebenkosten
Kaution
2 Monatsmieten
Warum sehe ich diese Anzeige? – Du siehst diese Anzeige basierend auf Ihrer Navigation auf unserer Website und den Suchkriterien, die du verwendet hast.
Lage
Beliebtes Wohnviertel in schöner Lage
ca. 1.3km nordöstlich der Innenstadt
U-Bahn:
Linie 4 Haltestelle "Hhenstrae" (4 Min. zu Fuß)
Linie 7 Haltestelle "Habsburgerallee" (7 Min. zu Fuß)
Straßenbahn:
Linie 14Haltestelle "Habsburger-/Wittelsbacherallee" (3 Min. zu Fuß)
PKW:
begrenzte...
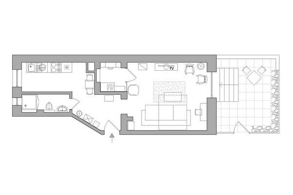
Die Wohnung
Wohnungslage
1. Geschoss
Bezug
sofort
Wohnanlage
Energie & Heizung
Warum sehe ich diese Anzeige? – Du siehst diese Anzeige basierend auf Ihrer Navigation auf unserer Website und den Suchkriterien, die du verwendet hast.
Energieausweistyp
Verbrauchsausweis
Gebäudetyp
Wohngebäude
Wesentliche Energieträger
Gas
Endenergieverbrauch
150,00 kWh/(m²·a)
Weitere Energiedaten
Energieträger
Gas
Heizungsart
Zentralheizung
Details
Objektbeschreibung
Bitte beachten Sie: Die Wohnung ist komplett möbliert und ausgestattet.
Die Gesamtmiete beinhaltet die Nebenkosten.
Gesamtmiete 1500,- Eur
inklusive Nebenkosten, zuzüglich Strom (ca 70EUR)
* schöne Wohnung in beliebter Wohnlage in Bornheim
* Modernes Schrankbett
* eigene Waschmaschine/Trocker in...
Ausstattung
* Allgemein
- moderne Möblierung im gut kombinierten Stil
- hochwertiges Parkett
- Abstellraum
* Technische Ausstattung
- eigener Internetanschluss
- Fernseher
- elektrische Außen-Rolläden
Weitere Informationen
Sonstiges
max. 2 Personen, nur an Nichtraucher, keine Haustiere
Wichtige Info:
Zur schnellen Bearbeitung Ihrer Anfrage empfehlen wir Ihnen, sich direkt bei uns auf www.city-residence.de anzumelden und uns die Eckdaten Ihrer Wohnungssuche zu nennen.
Gerne kommt ein Kundenberater zeitnah auf Sie zu, um die...
Anbieter der Immobilie
City-Residence GmbH
Hansaallee 154, 60320 Frankfurt am Main
Online-ID: 2n7zj5u
Referenznummer: 948803
Finde Angebote wie dieses
Hier geht es zu unserem Impressum, den Allgemeinen Geschäftsbedingungen, den Hinweisen zum Datenschutz und nutzungsbasierter Online-Werbung.