
Italia Immobilien
Frau Nadia Manuela Aron
004 ···
Nr. anzeigenPreise & Kosten
Provision für Käufer
3,66 % inkl. MwSt. inkl. MwSt.
Lage
Die Immobilie liegt nur 5 Minuten von einer größeren Ortschaft mit allen Dienstleistungen (Bars, Restaurants, Schulen, Apotheke etc.) entfernt. Die Zufahrt erfolgt über einen 600 Meter langen, gut ausgebauten Feldweg. Entfernungen: - 30 Minuten vom Flughafen Perugia San Francesco d'Assisi - 2 Stunden vom Flughafen...
Das Haus
Kategorie
Bauernhaus
Details
Objektbeschreibung
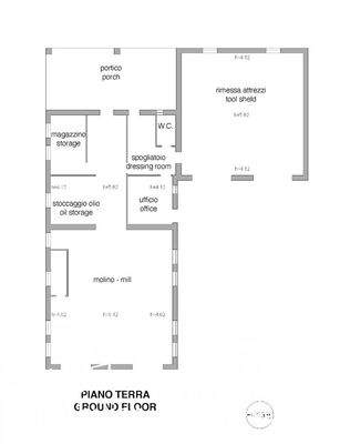
Ein Landgut inmitten von Olivenbäumen mit atemberaubendem Blick auf eines der schönsten Dörfer Italiens - Auf einem Hügel in dominanter Lage befindet erwarten Sie ein charmantes, bewohnbares Bauernhaus, das modernisierungsbedürftig ist, sowie ein komplett renoviertes Gebäude mit einer voll funktionsfähigen Olivenölmühle...
Weitere Informationen
Stichworte
Gesamtfläche: 720,00 m², Anzahl der Schlafzimmer: 3, Anzahl der Badezimmer: 1
Anbieter der Immobilie
Online-ID: 2n7zc5s
Referenznummer: IT-01786
Finde Angebote wie dieses
Hier geht es zu unserem Impressum, den Allgemeinen Geschäftsbedingungen, den Hinweisen zum Datenschutz und nutzungsbasierter Online-Werbung.