

Hamburger Maklerei
Herr Julien Sundmacher
040 ···
Nr. anzeigenPreise & Kosten
Provision für Käufer
Es fällt eine Courtage von 7,14% inkl. MwSt. vom notariellen Kaufpreis des Grundstückes an.
Lage
Dieses charmante Doppelhaushälfte befindet sich in der begehrten Umgebung von Ammersbek, im malerischen Stadtteil Hoisbüttel. Die Lage ist ideal für Familien und Berufstätige gleichermaßen, denn das Stadtzentrum ist nur 200 Meter entfernt und bietet eine Vielzahl an Einkaufsmöglichkeiten, die bequem zu Fuß erreichbar...
Das Haus
Kategorie
Doppelhaushälfte
Baujahr
2026
Bezug
nach Fertigstellung
Energie & Heizung
Warum sehe ich diese Anzeige? – Du siehst diese Anzeige basierend auf Ihrer Navigation auf unserer Website und den Suchkriterien, die du verwendet hast.
Weitere Energiedaten
Haustyp
Massivhaus
Heizungsart
Fußbodenheizung, Luft-/Wasser-Wärmepumpe
Details
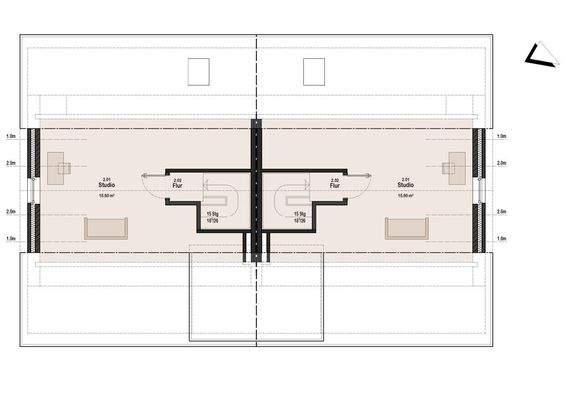
Objektbeschreibung
Es stehen zwei baugleiche Doppelhaushälften mit der identischen Ausstattung zum Verkauf.
- !RESERVIERT! Doppelhaushälfte 1: ca. 144 m² Wohnfläche, 643 m² Grundstück - Kaufpreis: 769.000 €
- Doppelhaushälfte 2: ca. 144 m² Wohnfläche, 687 m² Grundstück - Kaufpreis: 789.000 €
Zum Verkauf stehen zwei exklusive...
Ausstattung
- Massivebauweise
- Verblendmauerwerk
- KfW 40
- Luftwasser Wärmepumpe
- zentrale Lüftungsanlage mit Wärmerückgewinnung
- Fußbodenheizung
- 3-fach verglaste, farbige Fenster (außen farbig, innen weiß)
- elektrische Rollläden im EG (Wohnen/Küche) und OG
- Betontreppe mit darunterliegendem Abstellraum...
Weitere Informationen
Sonstiges
Bitte beachten Sie, dass wir Ihre Anfrage nur bearbeiten können, wenn Sie uns Ihre vollständigen Kontaktdaten zukommen lassen.
Zum Kaufpreis hinzu kommen folgende Kosten:
- Notarkosten
- Maklercourtage
- Grunderwerbssteuer
- Baunebenkosten
- Hausanschlusskosten
- Kosten für...
Anbieter der Immobilie
Hamburger Maklerei
Groten Hoff 1, 22359 Hamburg

Online-ID: 2n7xw5d
Referenznummer: HM-0239
Finde Angebote wie dieses
Hier geht es zu unserem Impressum, den Allgemeinen Geschäftsbedingungen, den Hinweisen zum Datenschutz und nutzungsbasierter Online-Werbung.