
Gebrüder Klaas Immobilien
Herr Conring Klaas
049 ···
Nr. anzeigenPreise & Kosten
Provision für Käufer
Die Käufercourtage beträgt 3,57 % inkl. MwSt. des notariellen Kaufpreises.
Lage
Dieses Einfamilienhaus befindet sich in ausgezeichneter, ruhiger Wohnlage von Esterwegen und überzeugt durch ein angenehmes Umfeld sowie ein ca. 600 m² großes Eigentumsgrundstück.
Dieses tolle Wohnhaus wurde in einer schönen und ruhigen Straße in Esterwegen errichtet.
Trotz der ruhigen Lage befinden sich mehrere...
Das Haus
Kategorie
Einfamilienhaus
Baujahr
1959
Bezug
01.08.2026
Energie & Heizung
Warum sehe ich diese Anzeige? – Du siehst diese Anzeige basierend auf Ihrer Navigation auf unserer Website und den Suchkriterien, die du verwendet hast.
Weitere Energiedaten
Energieträger
Gas
Heizungsart
Zentralheizung
Details
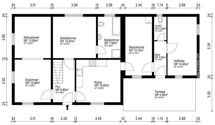
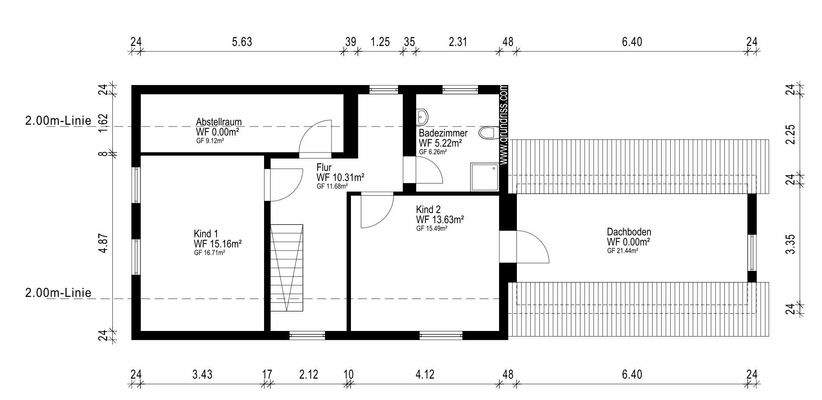
Objektbeschreibung
Das Wohnhaus wurde ca. 1959 errichtet und bietet eine solide Bausubstanz mit zeitgemäßer Modernisierung. Im Jahr 2019 wurde die Immobilie größtenteils renoviert und befindet sich heute in einem gepflegten Zustand.
Im Erdgeschoss erwartet Sie ein Küchenraum mit neuwertiger Einbauküche (2020 im Kaufpreis mit enthalten)...
Anbieter der Immobilie
Online-ID: 2n7xt5y
Referenznummer: 202034
Finde Angebote wie dieses
Hier geht es zu unserem Impressum, den Allgemeinen Geschäftsbedingungen, den Hinweisen zum Datenschutz und nutzungsbasierter Online-Werbung.