
Danhaus - Paulo Granja Handelsvertretung für die Danhaus Deutschland GmbH
Paulo Granja
+49 ···
Nr. anzeigenPreise & Kosten
Provision für Käufer
provisionsfrei
Lage
Entdecken Sie die ideale Kombination aus Lebensqualität und Komfort in Ihrem neuen Danhaus. Das Grundstück befindet sich in toller Lage, das sowohl die Ruhe des Grünen als auch die Nähe zur städtischen Infrastruktur bietet. Genießen Sie die Vorzüge einer friedlichen, naturverbundenen Umgebung, die perfekt für Familien oder...
Das Haus
Kategorie
Einfamilienhaus
Energie & Heizung
Warum sehe ich diese Anzeige? – Du siehst diese Anzeige basierend auf Ihrer Navigation auf unserer Website und den Suchkriterien, die du verwendet hast.
Weitere Energiedaten
Heizungsart
Fußbodenheizung
Details
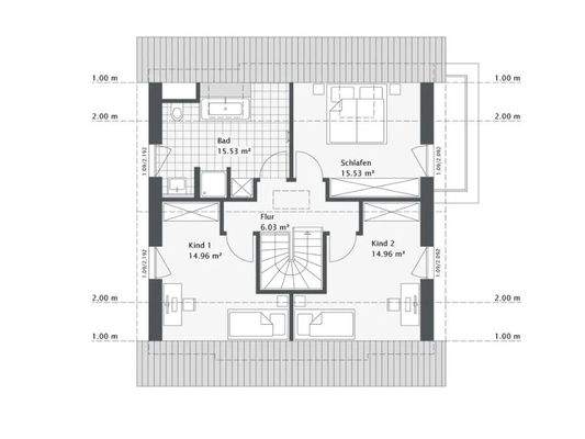
Objektbeschreibung
Die Firma Danhaus baut für Sie mit diesem Objekt die eigenen vier Wände. Dieses Haus ist in Planung und verfügbar direkt nach Fertigstellung.
Miet-Kauf wird angeboten. Finanzierung ohne Eigenkapital möglich, bestehende Schulden sind kein Hindernis (Bonität vorausgesetzt). Fragen Sie nach unserem Miet-Kauf-Modell!
Ausstattung
Individuell geplant und technik-fertig - Ihr Danhaus nach Maß!
Jedes unserer Fertighäuser wird individuell auf Ihr Grundstück, den Bebauungsplan und Ihre Wünsche abgestimmt. Die beliebte Danhaus-Ausbaustufe technik-fertig ist dabei die ideale Basis - mit vielen Extras inklusive:
-Massive Klinkerfassade im...
Weitere Informationen
Sonstiges
Mietkauf möglich. Bonität vorausgesetzt. Alle Angaben ohne Gewähr. Ohne Einsatz von Eigenkapital möglich. Altschulden, Verbindlichkeiten kein Hindernis. Abbildungen können Extras beinhalten. Ausgewiesener Preis exklusiv Erwerb und sonstigen Baunebenkosten. Bitte haben Sie Verständnis, das die Anfragen...
Anbieter der Immobilie
Danhaus - Paulo Granja Handelsvertretung für die Danhaus Deutschland GmbH
Porschestraße 10, 41564 Kaarst
Online-ID: 2n7wm5h
Referenznummer: DH-51260
Finde Angebote wie dieses
Hier geht es zu unserem Impressum, den Allgemeinen Geschäftsbedingungen, den Hinweisen zum Datenschutz und nutzungsbasierter Online-Werbung.