
FOCUS Immobilienmakler GmbH
Frau Nicole Alexander
004 ···
Nr. anzeigenPreise & Kosten
Kaution
3 Bruttomonatsmieten
Provision für Mieter
provisionsfrei
Warum sehe ich diese Anzeige? – Du siehst diese Anzeige basierend auf Ihrer Navigation auf unserer Website und den Suchkriterien, die du verwendet hast.
Lage
Die Immobilie befindet sich in Radebeul, liebevoll auch als das sächsische Nizza bezeichnet. Diese idyllische Stadt am Elbufer vereint malerische Weinberge mit historischem Charme und einer lebendigen Kulturszene. In nur wenigen hundert Metern Entfernung liegt die Landeshauptstadt Dresden, die mit ihren beeindruckenden...
Büro-/Praxisfläche
Kategorie
Bürofläche
Baujahr
1995
Bezug
nach Vereinbarung
Geschoss
1. Geschoss
Energie & Heizung
Warum sehe ich diese Anzeige? – Du siehst diese Anzeige basierend auf Ihrer Navigation auf unserer Website und den Suchkriterien, die du verwendet hast.
Wärme
Energieausweistyp
Verbrauchsausweis
Gebäudetyp
Nicht-Wohngebäude
Baujahr laut Energieausweis
1995
Wesentliche Energieträger
GAS
Gültigkeit
bis 06.05.2029
Endenergieverbrauch (Wärme)
75,00 kWh/(m²·a)
Weitere Energiedaten
Energieträger
Gas
Heizungsart
Zentralheizung
Details
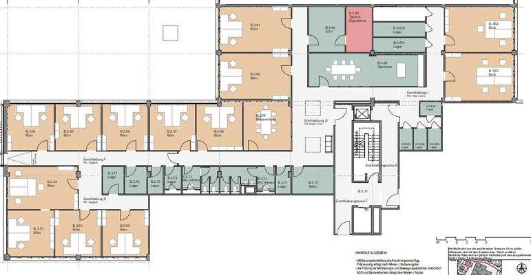
Objektbeschreibung
Diese Immobilie wurde in 2024 umfassend und zeitgemäße saniert. Hier erwartet Sie ein hochmoderner Bürostandort mit optimaler Anbindung an die Dresdner Innenstadt sowie an regionale und überregionale Ziele durch die direkte Anbindung an die A4 und den Flughafen Dresden.
In Bezug auf die Ausstattung stehen Ihnen eine...
Ausstattung
Die Mietflächen erstreckt sich vom 1-4. Obergeschoss können ab einer Größe von ca. 450 m² geteilt werden.
Der Mietpreis für die angebotene Immobilie richtet sich nach dem Umfang und Grad des Ausbaus. Wir unterstützen Sie gerne bei der Planung und Umsetzung Ihres Projekts und passen die Immobilie individuell an Ihre...
Preisinformation
1 Stellplatz, Miete: 50,00 EUR
1 Tiefgaragenstellplatz, Miete: 50,00 EUR
Nebenkosten pro qm: 2,60 EUR
Weitere Informationen
Sonstiges
Für ergänzende Informationen zum Objekt, einem persönlichen Beratungsgespräch hinsichtlich Ihres Flächenbedarfs bzw. für die Übersendung eines individuell auf Sie abgestimmtes Mietangebotes stehen wir Ihnen gern telefonisch zur Verfügung.
Gern können Sie sich über weitere Angebote unter...
Anbieter der Immobilie
FOCUS Immobilienmakler GmbH
Rabensteinplatz 1, 04103 Leipzig
Online-ID: 2n7w857
Referenznummer: MH681_19
Finde Angebote wie dieses
Hier geht es zu unserem Impressum, den Allgemeinen Geschäftsbedingungen, den Hinweisen zum Datenschutz und nutzungsbasierter Online-Werbung.