
AWG Wohnungsgenossenschaft eG Altenburg
Frau Juliane Dietrich
034 ···
Nr. anzeigenPreise & Kosten
Warum sehe ich diese Anzeige? – Du siehst diese Anzeige basierend auf Ihrer Navigation auf unserer Website und den Suchkriterien, die du verwendet hast.
Lage
Gerstenberg befindet sich südwestlich der Stadt Altenburg, nur wenige Kilometer vom Stadtzentrum entfernt.
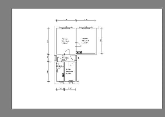
Die Wohnung
Wohnungslage
2. Geschoss
Bezug
sofort
Wohnanlage
Energie & Heizung
Warum sehe ich diese Anzeige? – Du siehst diese Anzeige basierend auf Ihrer Navigation auf unserer Website und den Suchkriterien, die du verwendet hast.
Energieausweistyp
Verbrauchsausweis
Gebäudetyp
Wohngebäude
Baujahr laut Energieausweis
1966
Wesentliche Energieträger
Erdgas
Gültigkeit
16.04.2021 bis 15.04.2031
Effizienzklasse
C
Endenergieverbrauch
96,00 kWh/(m²·a)
Weitere Energiedaten
Energieträger
Gas
Heizungsart
Zentralheizung
Details
Objektbeschreibung
Das Objekt liegt im idyllischen und ländlich gelegenen Dorf Gerstenberg inmitten einer angenehmen und freundlichen Nachbarschaft.
Ausstattung
Die Wohnung verfügt über eine Küche mit Fenster sowie ein Badezimmer mit Wanne, Waschmaschinenanschluss und Tageslicht. Über das Wohnzimmer gelangen Sie auf den sonnigen Balkon und ins helle Schlafzimmer.
Anbieter der Immobilie
AWG Wohnungsgenossenschaft eG Altenburg
Heinrich-Heine-Str. 56, 04600 Altenburg
Online-ID: 2n7vj5n
Finde Angebote wie dieses
Hier geht es zu unserem Impressum, den Allgemeinen Geschäftsbedingungen, den Hinweisen zum Datenschutz und nutzungsbasierter Online-Werbung.