

Opitz-Gehrisch Real Estate & Consulting
Frau Daniela Opitz-Gehrisch
017 ···
Nr. anzeigenPreise & Kosten
Kaution
5850
Warum sehe ich diese Anzeige? – Du siehst diese Anzeige basierend auf Ihrer Navigation auf unserer Website und den Suchkriterien, die du verwendet hast.
Lage
Mitten in der Hanauer Innenstadt gelegen, verbindet die Herrnstraße urbanes Wohnen mit kurzen Wegen und perfekter Anbindung.
Wer hier lebt, genießt das volle Stadtleben: Restaurants, Cafés, Geschäfte, Ärzte und kulturelle Einrichtungen befinden sich direkt vor der Haustür – alles fußläufig erreichbar.
Die...
Das Haus
Kategorie
Reihenmittelhaus
Geschosse
2 Geschosse
Baujahr
2025
Bezug
sofort
Energie & Heizung
Warum sehe ich diese Anzeige? – Du siehst diese Anzeige basierend auf Ihrer Navigation auf unserer Website und den Suchkriterien, die du verwendet hast.
Energieausweistyp
Bedarfsausweis
Gebäudetyp
Wohngebäude
Baujahr laut Energieausweis
2025
Wesentliche Energieträger
Strom-Mix
Gültigkeit
19.08.2025 bis 18.08.2035
Effizienzklasse
A+
Endenergiebedarf
17,40 kWh/(m²·a)
Weitere Energiedaten
Energieträger
Erdwärme
Heizungsart
Luft-/Wasser-Wärmepumpe, Zentralheizung
Details
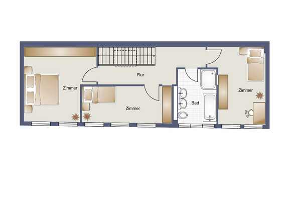
Objektbeschreibung
Einziehen, wohlfühlen, ankommen – in diesem exklusiven Stadthaus verbinden sich moderne Architektur, durchdachte Raumplanung und hochwertigste Ausstattung zu einem Zuhause, das keine Wünsche offenlässt - ein echtes Wohlfühl-Zuhause für Individualisten, Paare oder kleine Haushalte, die das Besondere suchen.
Das...
Ausstattung
•Erstbezug & moderne Bauweise
•Top-Zentrumslage, alles fußläufig erreichbar
•Hochwertige Ausstattung vom Boden bis zur Armatur
•Energieeffizient gebaut nach neuestem Standard
•Stilvolle Wohnfläche, ideal für Singles, Paare oder die kleine Familie
•Modernes Tageslichtbad mit begehbarer Dusche/Badewanne...
Weitere Informationen
Energiequelle:
Solarenergie
Wärmepumpe
Anbieter der Immobilie

Online-ID: 2n7un5w
Finde Angebote wie dieses
Hier geht es zu unserem Impressum, den Allgemeinen Geschäftsbedingungen, den Hinweisen zum Datenschutz und nutzungsbasierter Online-Werbung.