

GN Münsterland Immobilien GmbH
Frau Maja Holtschulte
025 ···
Nr. anzeigenPreise & Kosten
Provision für Käufer
2,38 % des Kaufpreises inkl. Mehrwertsteuer
Lage
Die zentrale Lage ermöglicht es Ihnen, schnell in die Innenstadt von Münster zu gelangen. Mit dem Fahrrad sind Sie innerhalb von 10 Minuten am Prinzipalmarkt. Auch mit dem Bus, welcher alle 10 Minuten fährt, gelangen Sie von Ihrer Wohnung in unter 15 Minuten in die Innenstadt.
850 m weit entfernt finden Sie einen...
Die Wohnung
Bezug
01.07.2027
Wohnanlage
Energie & Heizung
Warum sehe ich diese Anzeige? – Du siehst diese Anzeige basierend auf Ihrer Navigation auf unserer Website und den Suchkriterien, die du verwendet hast.
Weitere Energiedaten
Heizungsart
Fußbodenheizung, Luft-/Wasser-Wärmepumpe
Details
Objektbeschreibung
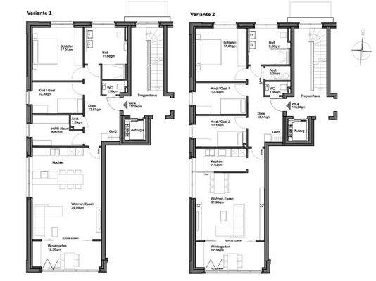
Diese Wohnung wird in einer begehrten Wohnlage von Münster-Mauritz Ost am Dortmund-Ems-Kanal errichtet, befindet sich im ersten Obergeschoss und ist mit dem Aufzug erreichbar. Die Wohnung betritt man durch eine Diele mit ausreichend Platz für eine Garderobe, die den Zugang zum Gäste-WC ermöglicht. Nach Norden gelangen Sie ins...
Ausstattung
- 9- Parteienhaus
- Effizienzhaus-Stufe 40
- Luft-Wärme-Pumpe + Photovoltaikanlage
- Wintergarten
- Kellerabteil
- Tiefgaragenstellplatz
- Wasch- und Trockenraum im Keller
- Fahrradabstellplätze im Keller und vor dem Haus
Preisinformation
1 Tiefgaragenstellplatz
Weitere Informationen
Sonstiges
Die Baugenehmigung für dieses Projekt liegt vor, der Baubeginn ist erfolgt. Die Fertigstellung ist für Juli 2027 geplant.
Die Beheizung erfolgt gemäß dem KfW-40-Standard über eine Luft-Wärmepumpe und eine PV-Anlage. Ein Energieausweis wird nach der Fertigstellung ausgehändigt.
Hat dieses...
Anbieter der Immobilie
GN Münsterland Immobilien GmbH
Krögerweg 32, 48155 Münster

Online-ID: 2n7tl5y
Referenznummer: 1736
Finde Angebote wie dieses
Hier geht es zu unserem Impressum, den Allgemeinen Geschäftsbedingungen, den Hinweisen zum Datenschutz und nutzungsbasierter Online-Werbung.