
Stadtbau und Wohnungsverwaltung GmbH Glauchau
Frau Tina Drummer
037 ···
Nr. anzeigenPreise & Kosten
nicht in Nebenkosten enthalten
Kaution
400
Warum sehe ich diese Anzeige? – Du siehst diese Anzeige basierend auf Ihrer Navigation auf unserer Website und den Suchkriterien, die du verwendet hast.
Lage
Das Objekt befindet sich in einer ruhigen, aber zentralen Lage. In unmittelbarer Nachbarschaft finden Sie einen Einkaufsmarkt. Nur wenige Gehminuten entfernt befinden sich ein Kindergarten sowie eine Grundschule. Fußläufig erreichen Sie auch ein Gymnasium und das Krankenhaus.
Medizinische Einrichtungen sind schnell...
Die Wohnung
Wohnungslage
1. Geschoss
Bezug
sofort
Wohnanlage
Energie & Heizung
Warum sehe ich diese Anzeige? – Du siehst diese Anzeige basierend auf Ihrer Navigation auf unserer Website und den Suchkriterien, die du verwendet hast.
Energieausweistyp
Verbrauchsausweis
Gebäudetyp
Wohngebäude
Baujahr laut Energieausweis
1974
Wesentliche Energieträger
Gas
Gültigkeit
16.10.2018 bis 16.10.2028
Effizienzklasse
D
Endenergieverbrauch
105,00 kWh/(m²·a)
Weitere Energiedaten
Energieträger
Gas
Heizungsart
Zentralheizung
Details
Objektbeschreibung
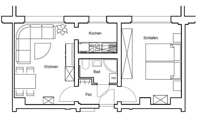
Wir vermieten eine kleine 2-Raum-Wohnung ein einem Mehrfamilienwohnhaus in der Glauchauer Oberstadt.
Ausstattung
Bad innen liegend mit Dusche
Keller zur Wohnung vorhanden
Ein Fahrzeugstellplatz kann angemietet werden (12 €/Monat)
Weitere Informationen
Alle Angaben in diesem Exposé wurden sorgfältig und so vollständig wie möglich gemacht. Gleichwohl kann das Vorhandensein von Fehlern nicht ausgeschlossen werden. Die Angaben in diesem Exposé erfolgen daher ohne jede Gewähr. Maßgeblich sind die im Mietvertrag geschlossenen Vereinbarungen. Soweit die Grundrissgrafiken...
Anbieter der Immobilie
Stadtbau und Wohnungsverwaltung GmbH Glauchau
Sachsenallee 65, 08371 Glauchau
Online-ID: 2n7s35p
Referenznummer: 2101/19/51
Finde Angebote wie dieses
Hier geht es zu unserem Impressum, den Allgemeinen Geschäftsbedingungen, den Hinweisen zum Datenschutz und nutzungsbasierter Online-Werbung.