

Gemeinnützige Baugenossenschaft Nachrodt-Wiblingwerde eG
Herr Till Lange
023 ···
Nr. anzeigenPreise & Kosten
nicht in Nebenkosten enthalten
Kaution
1.000 € (Genossenschaftsanteile)
Warum sehe ich diese Anzeige? – Du siehst diese Anzeige basierend auf Ihrer Navigation auf unserer Website und den Suchkriterien, die du verwendet hast.
Lage
Recht zentral und ruhig gelegen in der Lüden-scheider Innenstadt – Zukunftswohnen im Danziger Weg 5. Neben barrierefreien Mietwohnungen für Singles, Paare und Familien aller Altersgruppen befinden sich Tiefgaragenstellplätze und Stellplätze, die vorerst ausschließlich unseren Mietern zur Verfügung gestellt werden. Die...
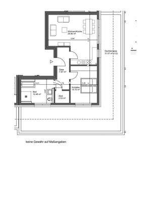
Die Wohnung
Kategorie
Penthouse
Wohnungslage
Dachgeschoss
Bezug
01.05.2026
Wohnanlage
Energie & Heizung
Warum sehe ich diese Anzeige? – Du siehst diese Anzeige basierend auf Ihrer Navigation auf unserer Website und den Suchkriterien, die du verwendet hast.
Energieausweistyp
Bedarfsausweis
Gebäudetyp
Wohngebäude
Baujahr laut Energieausweis
2023
Wesentliche Energieträger
Elektro
Gültigkeit
18.11.2023 bis 06.05.2034
Effizienzklasse
A+
Endenergiebedarf
21,60 kWh/(m²·a)
Weitere Energiedaten
Energieträger
Elektro
Heizungsart
Fußbodenheizung, Luft-/Wasser-Wärmepumpe, Zentralheizung
Details
Objektbeschreibung
Mit dem Projekt „Zukunftswohnen Danziger Weg“ erweiterte die Wohnungsgenossenschaft Lüdenscheid eG – kurz WGL genannt – sein regionales Wohnungsangebot. Das Objekt wurde in 2024 fertiggestellt. In den beiden Baukörpern, welche durch eine Tiefgarage miteinander verbunden sind, wird es insgesamt 25 Mietwohnungen von 60 bis 107...
Ausstattung
Optimale Grundrisse lassen Raum für individuelle Wohnwünsche in jeder Lebensphase. Im Dach-geschoss befinden sich die exklusiveren „Penthouse-Wohnungen“, die insbesondere durch die sehr großen Balkone überzeugen. Die Wohnungen werden über die regelbare Fußbodenheizung beheizt, jede Wohnung ist mit einer ebenerdigen Dusche...
Weitere Informationen
Die Wohnungsgenossenschaft Lüdenscheid ist das älteste Wohnungsunternehmen in Lüdenscheid, besteht bereits seit dem Jahre 1897 und ist somit über 125 Jahre alt. Gegründet wurde die Genossen-schaft von Bürgern der Stadt, die damit einen Beitrag zur Verbesserung der bis in die 80er Jahre herrschen-den Wohnungsnot in Lüdenscheid...
Anbieter der Immobilie
Gemeinnützige Baugenossenschaft Nachrodt-Wiblingwerde eG
Hagener Str. 30, 58769 Nachrodt-Wiblingwerde

Online-ID: 2n7qc5v
Referenznummer: 072/025.04
Finde Angebote wie dieses
Hier geht es zu unserem Impressum, den Allgemeinen Geschäftsbedingungen, den Hinweisen zum Datenschutz und nutzungsbasierter Online-Werbung.