
S Immobilienpartner GmbH
Herr Tim Schürg
004 ···
Nr. anzeigenPreise & Kosten
Provision für Käufer
4,16 % inkl. MwSt.
Lage
Die Bonner Innenstadt, zwischen Rhein und Bahnhof, wird geprägt durch die bekanntesten Gebäude der Stadt: das fünftürmige Bonner Münster, das historische Rathaus und das kurfürstliche Stadtschloss, seit 1818 Hauptgebäude der Bonner Universität. Dazwischen dehnt sich die großzügige und belebte Fußgängerzone aus. Die dort...
Das Haus
Kategorie
Mehrfamilienhaus
Baujahr
1904
Energie & Heizung
Warum sehe ich diese Anzeige? – Du siehst diese Anzeige basierend auf Ihrer Navigation auf unserer Website und den Suchkriterien, die du verwendet hast.
Energieausweistyp
Bedarfsausweis
Gebäudetyp
Wohngebäude
Baujahr laut Energieausweis
1904
Wesentliche Energieträger
GAS
Gültigkeit
bis 20.12.2026
Effizienzklasse
E
Endenergiebedarf
158,80 kWh/(m²·a)
Weitere Energiedaten
Energieträger
Gas
Details
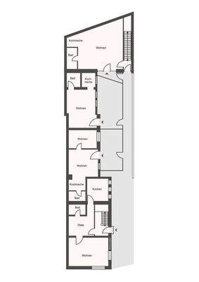
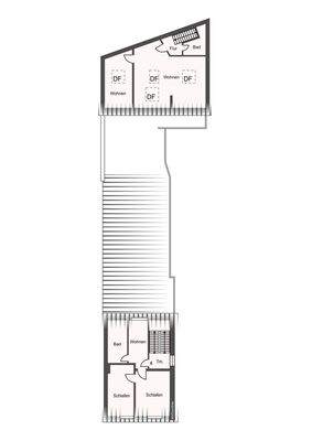
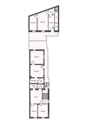
Objektbeschreibung
Im Herzen der Bonner Innenstadt, eingebettet zwischen prächtigen denkmalgeschützten Häusern, befindet sich dieses attraktive 9-Parteienhaus, welches teilweise um die Jahrhundertwende errichtet wurde. Das genaue Baujahr ist nicht bekannt. Die Wohnungen mit einer idealen Größe von 31 bis 49 Quadratmetern, sind perfekt für...
Preisinformation
Soll-Mieteinnahmen pro Jahr: 79.020,00 EUR
Ist-Mieteinnahmen pro Jahr: 79.020,00 EUR
Weitere Informationen
Stichworte
Stellplatz vorhanden, Anzahl Terrassen: 1, 2 Etagen
Anbieter der Immobilie
Online-ID: 2n7pq5y
Referenznummer: 88885
Finde Angebote wie dieses
Hier geht es zu unserem Impressum, den Allgemeinen Geschäftsbedingungen, den Hinweisen zum Datenschutz und nutzungsbasierter Online-Werbung.