
Evernest GmbH
Luba Schneider
+49 ···
Nr. anzeigenPreise & Kosten
Provision für Käufer
5.95 inkl. MwSt.
Bei Abschluss eines notariellen Kaufvertrages ist eine Käuferprovision vom Käufer in Höhe von 5.95 % inkl. MwSt. aus dem Kaufpreis fällig.
Lage
Die Immobilie befindet sich in einer ruhigen und bevorzugten Wohnlage von Refrath, einem der beliebtesten Stadtteile von Bergisch Gladbach. Das Umfeld ist geprägt von gepflegten Wohnhäusern, viel Grün und einer angenehmen Nachbarschaft. Die Lage ist ideal für alle, die stadtnah wohnen und dennoch Ruhe genießen...
Das Haus
Kategorie
Mehrfamilienhaus
Baujahr
1969
Energie & Heizung
Warum sehe ich diese Anzeige? – Du siehst diese Anzeige basierend auf Ihrer Navigation auf unserer Website und den Suchkriterien, die du verwendet hast.
Energieausweistyp
Bedarfsausweis
Gebäudetyp
Wohngebäude
Effizienzklasse
D
Endenergiebedarf
125,67 kWh/(m²·a)
Details
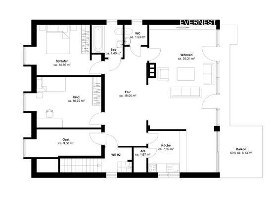
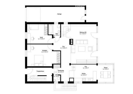
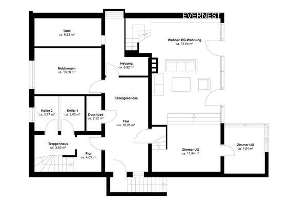
Objektbeschreibung
Bei der angebotenen Immobilie handelt es sich um ein Mehrfamilienhaus mit drei Wohneinheiten. Das im Jahr 1969 errichtete Gebäude steht auf einem ca. 928 m² großen Grundstück und bietet eine Gesamtwohnfläche von rund 314 m², verteilt auf drei Einheiten. Das Haus ist vollständig unterkellert und wird über eine Gastherme aus...
Ausstattung
- 3 Wohneinheiten
- ca. 314 m² Wohnfläche
- ca. 928 m² Grundstück
- Gastherme 2023
- Renovierung des Erdgeschosses / Souterrain 2023
- Klimaanlage im Dachgeschoss
- Doppelgarage
Weitere Informationen
Stichworte
Parkhaus vorhanden, Anzahl der Schlafzimmer: 6, Anzahl der Badezimmer: 3, Anzahl der separaten WCs: 1, Anzahl Balkone: 2, Anzahl Terrassen: 1, 3 Etagen
Anbieter der Immobilie
Online-ID: 2n7pl5v
Referenznummer: L-AQND4C8
Finde Angebote wie dieses
Hier geht es zu unserem Impressum, den Allgemeinen Geschäftsbedingungen, den Hinweisen zum Datenschutz und nutzungsbasierter Online-Werbung.