
Tectum Real Property GmbH
Thomas Kuschel
+41 ···
Nr. anzeigenPreise & Kosten
Provision für Käufer
3% zzgl. MwSt.
Provision zzgl. MwSt.
Lage
Alle wichtigen Einrichtungen, Arztpraxis und Einkaufsmöglichkeiten des täglichen Bedarfs sind in Sigmaringendorf fußläufig erreichbar, ebenso die Bushaltestellen und der Zughaltepunkt Richtung Sigmaringen und Mengen.
Die Wohnung
Bezug
2026/2027
Wohnanlage
Energie & Heizung
Warum sehe ich diese Anzeige? – Du siehst diese Anzeige basierend auf Ihrer Navigation auf unserer Website und den Suchkriterien, die du verwendet hast.
Energieausweis: für diesen Gebäudetyp nicht notwendig
Details
Objektbeschreibung
Im Ringelnatzweg entsteht ein innovatives Wohnkonzept für Menschen ab 60 Jahren, welches ein hohes Maß an Komfort und Sicherheit für das Wohnen im Alter ins Zentrum der Planungen stellt.
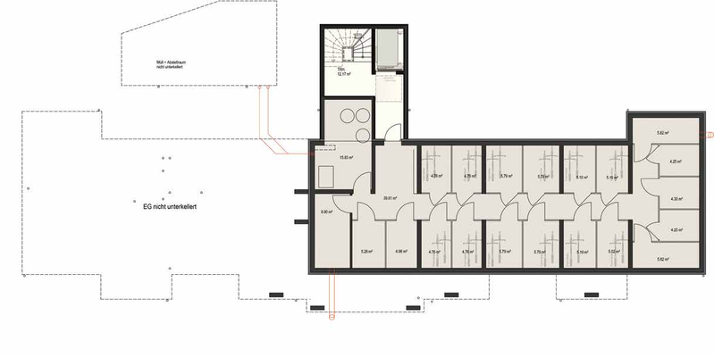
In einem architektonisch ansprechenden Wohngebäude mit vier Wohngeschossen und separaten Kellerräumen für jede Wohnung sind alle 19...
Ausstattung
Konsequent auf barrierefreie Bedürfnisse zugeschnittene Grundrisse, so zeigt sich das ServiceWohnenPlus in den Lauchertgärten auch in der Aufteilung von seiner besten Seite. Das gesamte Erdgeschoss wurde nach den neuesten Standards und Erfahrungen aufgebaut. Über einen überdachten Eingang gelangt man in den lichtdurchfluteten...
Preisinformation
21 Stellplätze
Weitere Informationen
Sonstiges
Bei der Wohnanlage handelt es sich um eine geplante Seniorenresidenz in der Nähe von Sigmaringen, für die bereits ein langjähriger, etablierter Betreiber zur Verfügung steht.
Derzeit geht der Kunde von einem Globalverkauf aus.
Kennzahlen:
Wohnfläche: 1.152 qm
Anzahl Wohnungen...
Anbieter der Immobilie
Tectum Real Property GmbH
Höhenweg 31, 78464 Konstanz
Online-ID: 2n7pe5l
Referenznummer: 4814115
Finde Angebote wie dieses
Hier geht es zu unserem Impressum, den Allgemeinen Geschäftsbedingungen, den Hinweisen zum Datenschutz und nutzungsbasierter Online-Werbung.