

VR-Immobilien Bonn Rhein-Sieg GmbH
Herr Manuel Kotte
022 ···
Nr. anzeigenPreise & Kosten
Provision für Käufer
3,57% inkl. der ges. MwSt.
Die Provision ist verdient und fällig mit notarieller Beurkundung. Der Immobilienmakler hat einen provisionspflichtigen Maklervertrag in gleicher Höhe mit dem Verkäufer abgeschlossen.
Lage
Die Immobilie befindet sich in zentraler, gut angebundener Lage von Meckenheim. Das Umfeld ist geprägt von gewachsenen Wohn- und Geschäftshäusern sowie einer guten Nahversorgung.
Öffentliche Verkehrsmittel, Geschäfte des täglichen Bedarfs und gastronomische Angebote befinden sich in unmittelbarer Umgebung.
Die Anbindung...
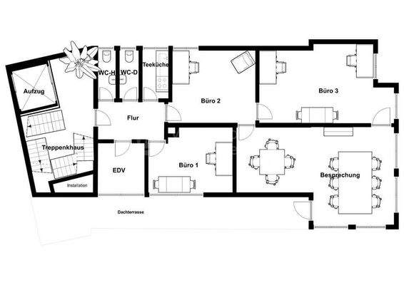
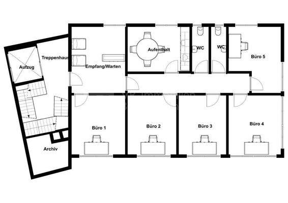
Büro-/Praxisfläche
Kategorie
Bürofläche
Baujahr
1968
Derzeitige Nutzung
vermietet
Energie & Heizung
Warum sehe ich diese Anzeige? – Du siehst diese Anzeige basierend auf Ihrer Navigation auf unserer Website und den Suchkriterien, die du verwendet hast.
Weitere Energiedaten
Energieträger
Gas
Heizungsart
Zentralheizung
Details
Objektbeschreibung
Zum Verkauf steht eine langfristig vermietete Büroeinheit in einem gepflegten Geschäftshaus in zentraler Lage von Meckenheim. Die Einheit erstreckt sich über das zweite und dritte Obergeschoss des Gebäudes und überzeugt durch eine solide Bauweise sowie eine nachhaltige Vermietungssituation.
Das Objekt wurde im Jahr...
Weitere Informationen
Energiepass
Energieausweis wird bei Besichtigung vorgelegt.
Stichworte
Gesamtfläche: 248,96 m², Anzahl Balkone: 1, Bundesland: Nordrhein-Westfalen
Anbieter der Immobilie

Online-ID: 2n7p95w
Referenznummer: 4624
Finde Angebote wie dieses
Hier geht es zu unserem Impressum, den Allgemeinen Geschäftsbedingungen, den Hinweisen zum Datenschutz und nutzungsbasierter Online-Werbung.