
SOCON KG
Frau Kim Soltau
040 ···
Nr. anzeigenPreise & Kosten
in Warmmiete enthalten
Kaution
5900
Warum sehe ich diese Anzeige? – Du siehst diese Anzeige basierend auf Ihrer Navigation auf unserer Website und den Suchkriterien, die du verwendet hast.
Lage
Der Kurfürstendeich befindet sich in besonders ruhiger und grüner Lage auf einer Insel in der Doven Elbe im Hamburger Stadtteil Hamburg-Allermöhe. Das Grundstück liegt direkt am Schleusengraben und bietet damit eine attraktive Kombination aus Wohnen im Grünen und unmittelbarer Wassernähe. Hier genießen Sie Ruhe...
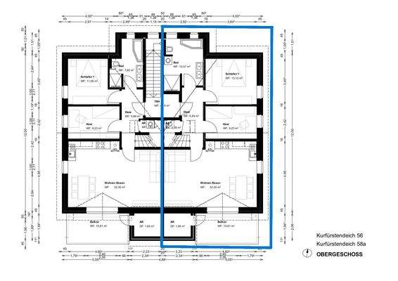
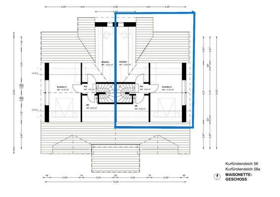
Die Wohnung
Kategorie
Maisonette
Wohnungslage
1. Geschoss
Bezug
01.09.2026
Wohnanlage
Energie & Heizung
Warum sehe ich diese Anzeige? – Du siehst diese Anzeige basierend auf Ihrer Navigation auf unserer Website und den Suchkriterien, die du verwendet hast.
Weitere Energiedaten
Energieträger
Elektro
Heizungsart
Fußbodenheizung, Luft-/Wasser-Wärmepumpe, Zentralheizung
Details
Objektbeschreibung
In attraktiver und naturnaher Lage von Hamburg-Allermöhe präsentiert sich dieses hochwertige Neubauensemble auf einem ca. 7.000 m² großen Grundstück direkt am Schleusengraben.
Der Wohnhof umfasst ein Fünf-Familienhaus sowie zwei Vier-Familienhäuser mit insgesamt 13 Wohneinheiten. Die Gebäude überzeugen durch ihre...
Weitere Informationen
Sonstiges
Wir freuen uns über aussagekräftige Nachrichten mit einigen Angaben zu Ihrer Person. Reine Standardanfragen gehen im Bewerbungsprozess leider unter. Besichtigungen sind nach Terminabsprache möglich.
Die Abschlagszahlung für Wasser und Abwasser ist in den Nebenkosten enthalten. Nur den Strom meldet der...
Anbieter der Immobilie
SOCON KG
Lehfeld 5, 21029 Hamburg
Online-ID: 2n7n85y
Finde Angebote wie dieses
Hier geht es zu unserem Impressum, den Allgemeinen Geschäftsbedingungen, den Hinweisen zum Datenschutz und nutzungsbasierter Online-Werbung.