
ohne-makler.net - Immobilien selbst vermarkten
Privat von Birgit Riemann-Chudy
Kontaktiere den Anbieter schriftlich, es ist keine Telefonnummer hinterlegt.
Preise & Kosten
Provision für Käufer
provisionsfrei
Lage
Die Innenstadt Lüneburgs ist schnell fußläufig erreichbar. Die Stadt begeistert mit einzigartiger Backsteingotik, Giebelbauten und dem Flair einer jungen Universitätsstadt. Lüneburg zählt bundesweit zu den Städten mit höchster Lebensqualität und starkem Wachstumspotenzial - ein Garant für solide Wertentwicklung. Hamburg...
Die Wohnung
Wohnungslage
2. Geschoss
Bezug
sofort
Wohnanlage
Energie & Heizung
Warum sehe ich diese Anzeige? – Du siehst diese Anzeige basierend auf Ihrer Navigation auf unserer Website und den Suchkriterien, die du verwendet hast.
Energieausweistyp
Verbrauchsausweis
Gebäudetyp
Wohngebäude
Effizienzklasse
B
Endenergieverbrauch
52,00 kWh/(m²·a)
Weitere Energiedaten
Energieträger
Fernwärme
Heizungsart
Fußbodenheizung
Details
Objektbeschreibung
Diese großzügig geschnittene, ruhige, von Licht durchflutete Wohnung, befindet sich im nördlichen Teil des Speicherquartiers - einer der attraktivsten Wohngegenden im Zentrum Lüneburgs.
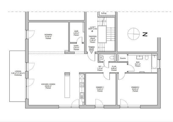
Unsere hochwertig ausgestattete 3-Zimmer-Wohnung im 2. Stock, bietet 135,48 m² Wohnfläche mit einem klar strukturierten...
Ausstattung
Balkon, Keller, Fahrstuhl, Vollbad, Duschbad, Einbauküche, Gäste-WC, Barrierefrei, Parkett, Fliesen
Bemerkungen:
WOHNFLÄCHEN
* Wohnzimmer: 37,02 m²
* Koch-/Essbereich: 29,59 m²
* Schlafzimmer: 15,48 m² und 20,83 m²
* Vollbad: 9,41 m²
* Gäste-WC: 2,27 m²
* HWR: 4,49 m²
*...
Preisinformation
1 Tiefgaragenstellplatz
Weitere Informationen
Sonstiges
Heizungsart: Fußbodenheizung
Energieträger: Fernwärme
Makleranfragen nicht erwünscht. Nach § 7 UWG sind unaufgeforderte Kontaktaufnahmen durch Makler ohne ausdrückliche Einwilligung des Empfängers verboten!
ohne-makler (OM) ist weder Anbieter noch Vermittler der Immobilie. OM betreibt eine...
Dokumente
Anbieter der Immobilie
ohne-makler.net - Immobilien selbst vermarkten
Humboldtstr. 25 A, 21509 Glinde
Privat von Birgit Riemann-Chudy
Dein Ansprechpartner
Kontaktiere den Anbieter schriftlich, es ist keine Telefonnummer hinterlegt.
Online-ID: 2n7km5j
Referenznummer: 382383
Finde Angebote wie dieses
Hier geht es zu unserem Impressum, den Allgemeinen Geschäftsbedingungen, den Hinweisen zum Datenschutz und nutzungsbasierter Online-Werbung.