
ohne-makler.net - Immobilien selbst vermarkten
Privat vom Eigentümer
Kontaktiere den Anbieter schriftlich, es ist keine Telefonnummer hinterlegt.
Preise & Kosten
Provision für Käufer
provisionsfrei
Lage
Die Wohnung befindet sich in L7, einer der gefragtesten Mikrolagen der Mannheimer Innenstadt und direkt an der Universitätsflanke der Quadrate.
. Universität Mannheim in ca. 2 Minuten fußläufig erreichbar
. direkte Nachbarschaft zu Fakultäten, Bibliotheken und universitären Einrichtungen
. sehr hohe Nachfrage...
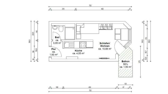
Die Wohnung
Wohnungslage
1. Geschoss
Bezug
sofort
Wohnanlage
Energie & Heizung
Warum sehe ich diese Anzeige? – Du siehst diese Anzeige basierend auf Ihrer Navigation auf unserer Website und den Suchkriterien, die du verwendet hast.
Energieausweistyp
Verbrauchsausweis
Gebäudetyp
Wohngebäude
Effizienzklasse
F
Endenergieverbrauch
193,00 kWh/(m²·a)
Weitere Energiedaten
Energieträger
Fernwärme
Heizungsart
Zentralheizung
Details
Objektbeschreibung
Warum dieses Uni-Unicorn trotz Toplage noch 6,7 % Rendite liefert
Apartments direkt an der Universität Mannheim gehören zu den rarsten und begehrtesten Wohnlagen der Stadt. Dieses vollständig renovierte und möblierte 1-Zimmer-Apartment in L7 verbindet Premiumlage, sofortige Vermietbarkeit und attraktive Rendite...
Ausstattung
Balkon, Fahrstuhl, Vollbad, Duschbad, Einbauküche, Laminat, Fliesen
Bemerkungen:
Besonderes Qualitätsmerkmal: Vollwertige Küche statt Pantry-Lösung
Ein entscheidender Unterschied zu den meisten 1-Zimmer-Apartments in der Mannheimer Innenstadt:
Die ursprünglich vorhandene Pantry-Küche wurde vollständig...
Preisinformation
1 Tiefgaragenstellplatz, Kaufpreis: 15.000,00 EUR
Weitere Informationen
Sonstiges
Heizungsart: Zentralheizung
Energieträger: Fernwärme
Sonstiges / Vermietung & Wirtschaftlichkeit
Die angesetzte Miete von 650 € kalt für das möblierte Apartment ist im Vergleich zum aktuellen Marktumfeld bewusst konservativ kalkuliert.
Zum Vergleich:
. WG-Zimmer im Jungbusch...
Anbieter der Immobilie
ohne-makler.net - Immobilien selbst vermarkten
Humboldtstr. 25 A, 21509 Glinde
Privat vom Eigentümer
Dein Ansprechpartner
Kontaktiere den Anbieter schriftlich, es ist keine Telefonnummer hinterlegt.
Online-ID: 2n7jr5s
Referenznummer: 434704
Finde Angebote wie dieses
Hier geht es zu unserem Impressum, den Allgemeinen Geschäftsbedingungen, den Hinweisen zum Datenschutz und nutzungsbasierter Online-Werbung.