

Volksbank pur Immobilien GmbH & Co. KG
Frau Dominique Wettstein
004 ···
Nr. anzeigenPreise & Kosten
Provision für Käufer
3,57 % inkl. MwSt.
Käuferprovision inkl. 19 % MwSt.
Lage
Die Immobilie befindet sich in schöner Ortsrandlage von Söllingen. Genießen Sie die Ruhe und Nähe zur Natur.
Söllingen bietet seinen 5.500 Einwohnern eine gute Infrastruktur. Alle Geschäfte für den täglichen Bedarf, Ärzte, Apotheken, Kindergärten, Grundschule sowie Freizeitmöglichkeiten sind vorhanden. Die...
Das Haus
Kategorie
Einfamilienhaus
Baujahr
1973
Bezug
Sofort verfügbar.
Energie & Heizung
Warum sehe ich diese Anzeige? – Du siehst diese Anzeige basierend auf Ihrer Navigation auf unserer Website und den Suchkriterien, die du verwendet hast.
Energieausweistyp
Bedarfsausweis
Gebäudetyp
Wohngebäude
Baujahr laut Energieausweis
1973
Wesentliche Energieträger
ELEKTRO
Gültigkeit
bis 13.07.2035
Effizienzklasse
E
Endenergiebedarf
134,30 kWh/(m²·a)
Weitere Energiedaten
Energieträger
Elektro
Heizungsart
Etagenheizung, offener Kamin
Details
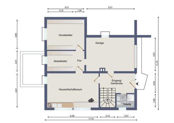
Objektbeschreibung
Dieses im Jahr ca. 1973 in massiver Bauweise errichtete Einfamilienhaus bietet auf ca. 170 m² Wohnfläche und einem ca. 730 m² großen Grundstück ein Zuhause mit viel Platz, Komfort und Ruhe. Die Immobilie befindet sich in einer besonders idyllischen Lage am Feldrand und verbindet erholsames Wohnen im Grünen mit einer guten...
Ausstattung
Die Ausstattung entspricht dem Standard des Baujahres und bietet Ihnen:
-Massivbauweise, teilweise Eternit-Fassadenplatten
-Satteldach mit Kriechspeicher, gedämmt und neu eingedeckt
-Isolierverglaste Kunststofffenster (weiß) ab 2022, Rollläden
-Natursteintreppe auf...
Preisinformation
1 Garagenstellplatz
Weitere Informationen
Sonstiges
Angaben und Haftungsvorbehalt: Alle Angaben in diesem Exposé wurden mit großer Sorgfalt zusammengestellt und auf ihre Korrektheit überprüft. Eine Haftung für Irrtümer (z. B. bei Flächen- / Maßangaben) wird dennoch ausgeschlossen. Im Exposé enthaltene Illustrationen und Fotos sind teilweise als Vorschläge...
Anbieter der Immobilie
Volksbank pur Immobilien GmbH & Co. KG
Karl-Friedrich-Straße 22, 76133 Karlsruhe

Online-ID: 2n7jq5f
Referenznummer: 106642
Finde Angebote wie dieses
Hier geht es zu unserem Impressum, den Allgemeinen Geschäftsbedingungen, den Hinweisen zum Datenschutz und nutzungsbasierter Online-Werbung.