
Aigner Immobilien GmbH
Herr Peter Sober
(08 ···
Nr. anzeigenPreise & Kosten
Provision für Käufer
3,57% inkl. MwSt.
Die Käuferprovision beträgt 3,57% inkl. gesetzlicher Mehrwertsteuer vom wirtschaftlichen Kaufpreis. Unsere Angebote erfolgen freibleibend und unverbindlich. Irrtum und Zwischenverkauf bleiben vorbehalten.
Lage
Die Doppelhaushälfte befindet sich in der idyllischen Gemeinde Haimhausen, die durch ihre ruhige und naturnahe Lage sowie ihre hervorragende Anbindung an die bayerische Landeshauptstadt München besticht. Haimhausen gehört zum oberbayerischen Landkreis Dachau und liegt inmitten einer grünen Umgebung, die für ihren hohen...
Das Haus
Kategorie
Doppelhaushälfte
Baujahr
2013
Bezug
ab sofort
Energie & Heizung
Warum sehe ich diese Anzeige? – Du siehst diese Anzeige basierend auf Ihrer Navigation auf unserer Website und den Suchkriterien, die du verwendet hast.
Energieausweistyp
Verbrauchsausweis
Gebäudetyp
Wohngebäude
Baujahr laut Energieausweis
2013
Gültigkeit
bis 01.07.2035
Endenergieverbrauch
27,35 kWh/(m²·a)
Weitere Energiedaten
Energieträger
Elektro
Heizungsart
Zentralheizung
Details
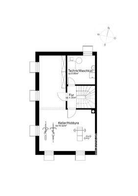
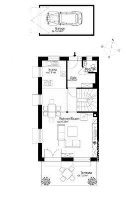
Objektbeschreibung
Diese 2013 erbaute Doppelhaushälfte bietet auf ca. 107,62 m² Wohnfläche und einem Grundstück von 266 m² ein modernes Zuhause und viel Raum für Familie und Entfaltung. Der großzügige Wohn- und Essbereich ist hell und einladend, mit großen Fenstern, die viel Tageslicht hereinlassen und eine angenehme Atmosphäre schaffen. Die...
Ausstattung
- KFW 70
- WEG-Teilung
- Wärmepumpe
- Fußbodenheizung
- Parkett in den Wohn- und Schlafräumen
- Laminat im Dachstudio
- Fliesenboden in Flur, Küche, Bad und Keller
- bodentiefe, absperrbare Fenster (3fach)
- Tageslichtbad mit Wanne und Dusche
- Handtuchheizung
- Gäste-WC
- Fernseh- und...
Preisinformation
1 Garagenstellplatz
Weitere Informationen
Sonstiges
Befeuerung/Energieträger: Strom
Energieausweistyp: Verbrauchsausweis
Baujahr: 2013
Heizungsart: Wärmepumpe
Energieeffizienzklasse: A+
Energiekennwert: 27,35 kWh/(m²*a)
Mehr Bilder und Infos hier - https://aigner-immobilien.de/objekt/ID-43156/
Kostenlose Online-Bewertung -...
Anbieter der Immobilie
Aigner Immobilien GmbH
Ruffinistraße 26, 80637 München
Online-ID: 2n7ja5b
Referenznummer: 43156
Finde Angebote wie dieses
Hier geht es zu unserem Impressum, den Allgemeinen Geschäftsbedingungen, den Hinweisen zum Datenschutz und nutzungsbasierter Online-Werbung.