

Garda Haus Srl
Frau Paola Mosele
+39 ···
Nr. anzeigenPreise & Kosten
Provision für Käufer
ja maklerprovision im Preis nicht inbegriffen inkl. MwSt.
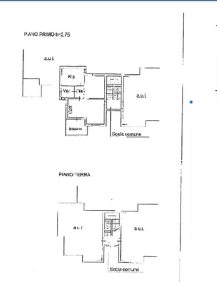
Die Wohnung
Wohnungslage
1. Geschoss
Wohnanlage
Energie & Heizung
Warum sehe ich diese Anzeige? – Du siehst diese Anzeige basierend auf Ihrer Navigation auf unserer Website und den Suchkriterien, die du verwendet hast.
Energieausweistyp
Bedarfsausweis
Gebäudetyp
Wohngebäude
Effizienzklasse
D
Endenergiebedarf
214,37 kWh/(m²·a)
Weitere Energiedaten
Heizungsart
Etagenheizung
Details
Objektbeschreibung
Im Herzen von Valtenesi, in Soiano del Lago, bieten wir eine schöne Drei-Zimmer-Wohnung im ersten Stock einer gepflegten Residenz mit Schwimmbad zum Verkauf an. Diese Lösung stellt die ideale Wahl für diejenigen dar, die eine exklusive Lage am Gardasee suchen, die sich durch ein intelligentes und funktionales Raummanagement...
Preisinformation
1 Stellplatz
Weitere Informationen
Besichtigungstermine
Wir begleiten Sie nach Terminvereinbarung persönlich zu den Objekten und stehen Ihnen während des gesamten Prozesses des Immobilienerwerbs als starker und kompetenter Partner zur Seite. Mit uns gehen Sie keine Kompromisse ein und überlassen nichts dem Zufall. Umfassender Service ist für uns nicht nur...
Anbieter der Immobilie
Garda Haus Srl
Via Meucci 77, 25080 PADENGHE SUL GARDA

Online-ID: 2n7hm5y
Referenznummer: PV-993
Finde Angebote wie dieses
Hier geht es zu unserem Impressum, den Allgemeinen Geschäftsbedingungen, den Hinweisen zum Datenschutz und nutzungsbasierter Online-Werbung.