

KHC Bauträger GmbH
Frau Janet Schrepel
037 ···
Nr. anzeigenPreise & Kosten
Provision für Käufer
provisionsfrei
Lage
Das schöne Grundstück befindet sich im chemnitzer Stadtteil Euba in zweiter Baureihe.
Wir planen jedes Kern-Haus frei nach Ihren Wünschen und passen es in das Grundstück ein.
Das Haus
Kategorie
Einfamilienhaus
Baujahr
2025
Energie & Heizung
Warum sehe ich diese Anzeige? – Du siehst diese Anzeige basierend auf Ihrer Navigation auf unserer Website und den Suchkriterien, die du verwendet hast.
Energieausweistyp
Bedarfsausweis
Gebäudetyp
Wohngebäude
Baujahr laut Energieausweis
2025
Gültigkeit
seit 04.01.2016
Effizienzklasse
A
Endenergiebedarf
99,41 kWh/(m²·a)
Weitere Energiedaten
Heizungsart
Fußbodenheizung, Zentralheizung
Details
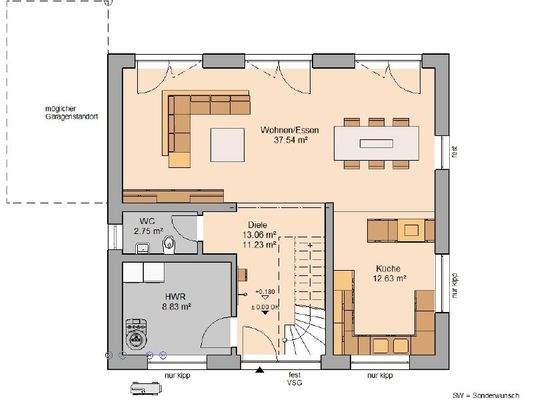
Objektbeschreibung
Das Massivhaus Trend ist modern und zeitlos zugleich. Die Architektursprache des Familienhauses ist klassisch, kombiniert mit der modernen Grundrissgestaltung im Innenraum. Das Erdgeschoss folgt dem Trend der Offenheit. Es gleicht mit der Kombination aus Wohnen, Essen und Küche einem Loftcharakter. Im Erdgeschoss befinden...
Ausstattung
4 Zimmer, offene Küche, Diele, Flur, Bad, WC, Ankleide, Hauswirtschaftsraum
Das gezeigte Traumhaus im Überblick:
+ Schlüsselfertiges Massivhaus im Sinne der Ausstattungsbeschreibung "Easy"
+ Inklusive Bodenplatte
Beste Markenausstattung in jedem Kern-Haus:
+ Zimmermannsmäßiger Dachstuhl aus...
Weitere Informationen
Sonstiges
Kern-Haus
Kern-Haus baut individuelle und massive Architektenhäuser zu einem attraktiven Preis-Leistungs-Verhältnis - und das bereits mit einer Erfahrung seit 1980.
Maximale Sicherheit bei Kern-Haus:
+ 10 Jahre Gewährleistung auf die wesentlichen Bauleistungen
+ Bis zu 24 Monate...
Anbieter der Immobilie

Online-ID: 2n7fh58
Referenznummer: KH 07_11
Finde Angebote wie dieses
Hier geht es zu unserem Impressum, den Allgemeinen Geschäftsbedingungen, den Hinweisen zum Datenschutz und nutzungsbasierter Online-Werbung.