

HEIMBURGER IMMOFINANZ GbR
Herr Frank Heimburger
076 ···
Nr. anzeigenPreise & Kosten
Provision für Käufer
2,38 % inkl. MwSt. Unser Immobilienbüro hat einen provisionspflichtigen Maklervertrag mit dem Verkäufer in gleicher Höhe abgeschlossen. Die Maklerprovision ist verdient und fällig mit Abschluss des notariellen Kaufvertrags.
Lage
Das Einfamilienhaus befindet sich in bevorzugter Hanglage des beliebten Ortsteils Rheinweiler - einem Teilort von Bad Bellingen. Von hier aus genießt man eine wunderschöne Aussicht über das Rheintal bis in die Vogesen.
Die Grenznähe zur Schweiz macht Rheinweiler besonders attraktiv für Berufspendler - Basel ist in rund...
Das Haus
Kategorie
Einfamilienhaus
Baujahr
2006
Bezug
Nach Vereinbarung
Energie & Heizung
Warum sehe ich diese Anzeige? – Du siehst diese Anzeige basierend auf Ihrer Navigation auf unserer Website und den Suchkriterien, die du verwendet hast.
Energieausweistyp
Verbrauchsausweis
Gebäudetyp
Wohngebäude
Baujahr laut Energieausweis
2006
Wesentliche Energieträger
Strom
Gültigkeit
12.11.2025 bis 11.11.2035
Effizienzklasse
A
Endenergieverbrauch
31,50 kWh/(m²·a) - Warmwasser enthalten
Weitere Energiedaten
Energieträger
Elektro
Details
Objektbeschreibung
Dieses freistehende Einfamilienhaus überzeugt mit einem nachhaltigen Energiekonzept: Eine effiziente Erdwärmepumpe in Kombination mit einer unterstützenden Solaranlage gewährleistet einen äußerst geringen Energiebedarf, der sich in bemerkenswert niedrigen Heiz- und Betriebskosten widerspiegelt.
Das Haus wurde in...
Weitere Informationen
Sonstiges
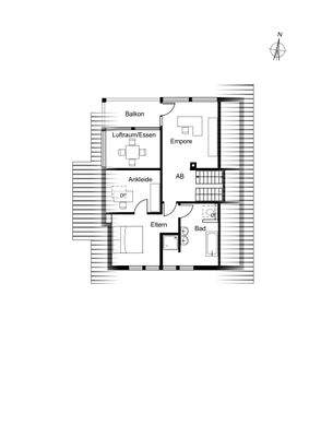
Haftungsausschluss: Alle in diesem Angebot enthaltenen Informationen, einschließlich Maße und Preisangaben, stammen vom Eigentümer oder einem Dritten. Diese Angaben wurden von uns nicht verifiziert. Bitte beachten Sie, dass die beigefügten Grundrisse lediglich als Orientierung dienen und möglicherweise nicht...
Anbieter der Immobilie
HEIMBURGER IMMOFINANZ GbR
Hauptstraße 153, 79379 Müllheim

Online-ID: 2n7ey5p
Referenznummer: 250
Finde Angebote wie dieses
Hier geht es zu unserem Impressum, den Allgemeinen Geschäftsbedingungen, den Hinweisen zum Datenschutz und nutzungsbasierter Online-Werbung.