

Daniel von Baum Immobilien GmbH
Herr Artin Martinian
020 ···
Nr. anzeigenPreise & Kosten
Provision für Käufer
3,57% (inkl. ges. MwSt.)
3,57% (inkl. ges. MwSt.) des Kaufpreises, fällig und zahlbar mit Abschluss des notariellen Kaufvertrages.
Lage
Der Stadtteil Remscheid-Hasten zählt zu den begehrten und traditionsreichsten Wohnlagen der Stadt. Geprägt von historischen bergischen Häusern, kleinen Straßenzügen und einer gewachsenen Nachbarschaft verbindet Hasten bergischen Charme mit städtischer Nähe.
Die Lage überzeugt durch eine sehr gute Infrastruktur...
Das Haus
Kategorie
Einfamilienhaus
Baujahr
1897
Bezug
sofort
Energie & Heizung
Warum sehe ich diese Anzeige? – Du siehst diese Anzeige basierend auf Ihrer Navigation auf unserer Website und den Suchkriterien, die du verwendet hast.
Energieausweis: für diesen Gebäudetyp nicht notwendig
Details
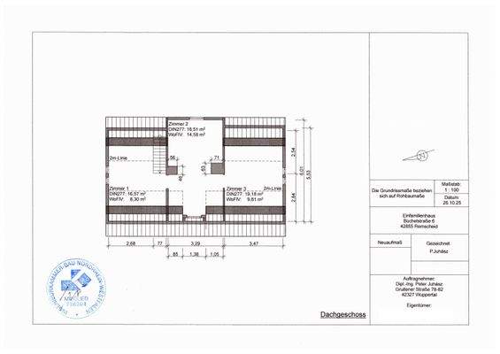
Objektbeschreibung
Dieses charmante denkmalgeschützte Einfamilienhaus bietet die ideale Gelegenheit für Eigennutzer, die den Traum vom individuellen Zuhause mit historischem Charakter verwirklichen möchten - kombiniert mit attraktiven steuerlichen Vorteilen.
Mit ca. 163 m² Wohnfläche auf einem 285 m² großen Grundstück (davon ca. 100 m²...
Weitere Informationen
Sonstiges
Nutzen Sie für Ihre Kontaktaufnahme jetzt den Button 'Anbieter kontaktieren' und fordern das Gesamt-Exposé an. Nach Angabe Ihrer Kontaktdaten erhalten Sie automatisch eine eMail mit der Bitte die Datenschutzerklärung zu bestätigen: Bitte schauen Sie auch in ihrem SPAM-Ordner nach.
>>>Wir bitten um...
Anbieter der Immobilie
Daniel von Baum Immobilien GmbH
Am Buschhäuschen 7, 42115 Wuppertal

Online-ID: 2n7cw5d
Referenznummer: BS6 2026 - SHS
Finde Angebote wie dieses
Hier geht es zu unserem Impressum, den Allgemeinen Geschäftsbedingungen, den Hinweisen zum Datenschutz und nutzungsbasierter Online-Werbung.