

Schlosser Immobilien
Frau Mandy Schlosser
004 ···
Nr. anzeigenPreise & Kosten
Provision für Käufer
3,57 % inkl. MwSt.
Lage
Mikrolage
Die Immobilie befindet sich in der Alt-Golpaer Straße im Ortsteil Möhlau, einem gewachsenen Wohngebiet mit überwiegend Ein- und Zweifamilienhäusern. Die Umgebung ist geprägt von ruhiger Wohnbebauung sowie großzügigen Grundstücken. Die Straße dient überwiegend dem Anliegerverkehr und verfügt über eine asphaltierte...
Das Haus
Kategorie
Doppelhaushälfte
Baujahr
1939
Energie & Heizung
Warum sehe ich diese Anzeige? – Du siehst diese Anzeige basierend auf Ihrer Navigation auf unserer Website und den Suchkriterien, die du verwendet hast.
Energieausweistyp
Verbrauchsausweis
Gebäudetyp
Wohngebäude
Baujahr laut Energieausweis
1939
Wesentliche Energieträger
ELEKTRO
Gültigkeit
bis 05.02.2031
Effizienzklasse
B
Endenergieverbrauch
61,20 kWh/(m²·a)
Weitere Energiedaten
Energieträger
Elektro
Heizungsart
Etagenheizung
Details
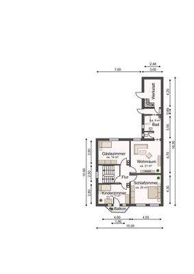
Objektbeschreibung
Diese Doppelhaushälfte verbindet moderne Wohnbereiche mit einem großzügigen Grundstück und vielseitigen Nutzungsmöglichkeiten. Sie eignet sich ideal für Familien, die ein Zuhause mit Platz im Innen und Außenbereich suchen.
Ein großer Vorteil der Immobilie ist die bereits vollständig modernisierte Elektrik. Das nimmt...
Ausstattung
Innenausstattung
. moderne Einbauküche mit Kochinsel
. separates Esszimmer
. weitere Räume nutzbar als Schlaf-, Kinder- oder Arbeitszimmer
. 2 Badezimmer mit Badewanne
. separate WC's vorhanden
. Treppenhaus mit offener Gestaltung
Technische Ausstattung
. Elektroheizung
. vorhandener...
Preisinformation
6 Stellplätze
1 Garagenstellplatz
Weitere Informationen
Stichworte
Anzahl der Schlafzimmer: 1, Anzahl Terrassen: 1, 3 Etagen, Distanz zum Kindergarten: 0.55, Distanz zur Grundschule: 9.80, Distanz zur Realschule: 9.70, Distanz zum Gymnasium: 9.50, Distanz zur Autobahn: 32.80
Anbieter der Immobilie
Schlosser Immobilien
Anger 69, 06800 Raguhn-Jeßnitz

Online-ID: 2n7by5v
Referenznummer: LT-304-26
Finde Angebote wie dieses
Hier geht es zu unserem Impressum, den Allgemeinen Geschäftsbedingungen, den Hinweisen zum Datenschutz und nutzungsbasierter Online-Werbung.