
Crozilla.com
Palace Real Estate
+38 ···
Nr. anzeigenPreise & Kosten
Provision für Käufer
Bitte beachte, das Angebot kann bei Vertragsabschluss die Zahlung einer Provision beinhalten. Weitere Informationen erhältst Du vom Anbieter.
Das Haus
Geschosse
1 Geschoss
Baujahr
2005
Details
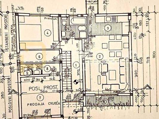
Objektbeschreibung
Zum Verkauf steht:
- Wohn- und Geschäftshaus mit einer Wohnfläche von 220 m2 und einem Grundstück von 823 m2 sowie einem Gewerberaum im Erdgeschoss von 24 m2
- Garage (Holzlager) von 46 m2 und überdachter Bereich mit drei Parkplätzen von 41 m2
- Baujahr 2005, letzte Renovierung im Jahr 2021
-...
Weitere Informationen
Stichworte
Anzahl der Schlafzimmer: 6, Anzahl der Badezimmer: 2, 1 Etagen
Anbieter der Immobilie
Crozilla.com
Nova cesta 60, 10000 ZAGREB
Online-ID: 2n7by5f
Referenznummer: 19347779_0
Finde Angebote wie dieses
Hier geht es zu unserem Impressum, den Allgemeinen Geschäftsbedingungen, den Hinweisen zum Datenschutz und nutzungsbasierter Online-Werbung.