
Di Lorenzo Immobilien- und Sachverständigenbüro
Frau Jil Schlaffen
004 ···
Nr. anzeigenPreise & Kosten
Provision für Käufer
3,57 % inkl. 19 % MwSt.
Lage
Diese Wohnlage überzeugt durch eine gelungene Verbindung aus naturnahem Wohnen und urbaner Erreichbarkeit. Der gepflegte Ortsteil Rheindahlen, bietet ein ruhiges und grünes Umfeld mit gleichzeitig sehr guter infrastruktureller Anbindung.
Besonders geschätzt wird die Lage von Familien: Bildungseinrichtungen wie Schulen...
Die Immobilie
Zu diesem Angebot wurden vom Anbieter keine weiteren Daten hinterlegt. Für weitere Informationen bitte den Anbieter kontaktieren.
Nach Informationen fragenDetails
Objektbeschreibung
In ruhiger und dennoch zentraler Lage von Mönchengladbach-Rheindahlen bietet sich Ihnen eine seltene Gelegenheit:
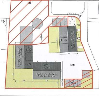
Zum Verkauf steht ein großzügiges Grundstück mit einem bereits genehmigten Bauvorbescheid für 6 Einfamilienhäuser, ein Mehrfamilienhaus mit 4 Einheiten sowie 3 Garagen.
Im Einzelnen umfasst die...
Weitere Informationen
Sonstiges
HAFTUNGSAUSSCHLUSS:
Hinsichtlich der Angaben dieses Objektes sind wir maßgeblich auf die Auskünfte der Verkäufer, Vermieter, Verpächter, Architekten, Bauträger/-herren und Behörden angewiesen. Für die Richtig- und Vollständigkeit der Objektangaben/-unterlagen und ggf. deren (hand-)schriftliche Inhalte...
Anbieter der Immobilie
Online-ID: 2n7az5g
Referenznummer: 909-SJ
Finde Angebote wie dieses
Hier geht es zu unserem Impressum, den Allgemeinen Geschäftsbedingungen, den Hinweisen zum Datenschutz und nutzungsbasierter Online-Werbung.