
RE/MAX Immobilien-Pro Weinstadt
Herr Engin Karakas
004 ···
Nr. anzeigenPreise & Kosten
Provision für Käufer
4,76 % inklusive ges. MwSt. vom Notariellen Kaufpreis
Lage
Das Grundstück befindet sich in ruhiger Hanglage in Albstadt-Ebingen. Die Lage vereint Naturverbundenheit und städtische Infrastruktur: Einkaufsmöglichkeiten, Schulen und öffentliche Verkehrsmittel sind schnell erreichbar. Die Region ist wirtschaftsstark mit mehreren Industrieunternehmen und guten Arbeitsplätzen in der...
Die Immobilie
Zu diesem Angebot wurden vom Anbieter keine weiteren Daten hinterlegt. Für weitere Informationen bitte den Anbieter kontaktieren.
Nach Informationen fragenDetails
Objektbeschreibung
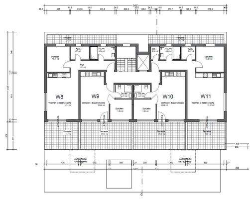
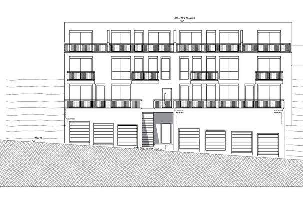
Zum Verkauf steht ein attraktives Baugrundstück in ruhiger Hanglage in Albstadt-Ebingen, ideal für die Realisierung eines Mehrfamilienhauses. Auf einer Fläche von ca. 1.070 m² können insgesamt 11 Wohneinheiten errichtet werden. Bereits im vereinfachten Baufondsverfahren genehmigt, bietet das Grundstück Planungssicherheit für...
Weitere Informationen
Sonstiges
Rechtshinweis:
Da wir Objekte nicht selbst ermitteln, übernehmen wir hierfür keine Gewähr.
Sämtliche Angaben in diesem Exposé basieren auf Informationen, die uns vom Eigentümer/Vermieter genannt wurden. Wir bemühen uns, möglichst vollständige und richtige Angaben zu erhalten und weiterzuleiten. Eine...
Anbieter der Immobilie
Online-ID: 2n75w5k
Referenznummer: 1026-13-EKA-IR-AE-01
Finde Angebote wie dieses
Hier geht es zu unserem Impressum, den Allgemeinen Geschäftsbedingungen, den Hinweisen zum Datenschutz und nutzungsbasierter Online-Werbung.