
Kopp ImmobilienService
Herr Olaf Kopp
030 ···
Nr. anzeigenPreise & Kosten
Provision für Käufer
3,57 % inklusive MwSt., vom Käufer zu zahlen; in gleicher Höhe werden wir vom Verkäufer vergütet
Lage
Die Immobilie (Baujahr ca. 1996) liegt in zentraler Lage in Berlin-Spandau, Ortsteil Hakenfelde, Nähe Havel und Spandauer Forst, auf einem Erbpachtgrundstück.
Im Umfeld gibt es Einkaufsmöglichkeiten, gastronomische Einrichtungen und Schulen, Spielplätze, das Wildgehege im Spandauer Forst, die Fährenstation "Tegeler...
Die Wohnung
Kategorie
Terrassenwohnung
Wohnungslage
2. Geschoss (Dachgeschoss)
Derzeitige Nutzung
vermietet
Wohnanlage
Energie & Heizung
Warum sehe ich diese Anzeige? – Du siehst diese Anzeige basierend auf Ihrer Navigation auf unserer Website und den Suchkriterien, die du verwendet hast.
Energieausweistyp
Verbrauchsausweis
Gebäudetyp
Wohngebäude
Baujahr laut Energieausweis
1996
Wesentliche Energieträger
GAS
Gültigkeit
bis 28.08.2028
Effizienzklasse
D
Endenergieverbrauch
105,40 kWh/(m²·a)
Weitere Energiedaten
Energieträger
Gas
Heizungsart
Zentralheizung
Details
Objektbeschreibung
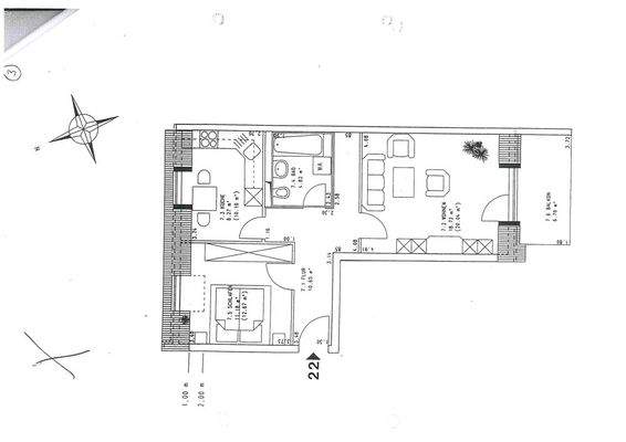
Die Wohnung Nr. 22 befindet sich im Dachgeschoss und ist vermietet. (eine Kündigung mit Eigenbedarf ist erst in 10 Jahren nach Kauf möglich)
Attraktiv ist der ca. 6,70 m² große Süd/Südwest-Balkon.
Ausstattung
- Teppich
- Einbauküche
- Thermofenster
- Bad mit Wanne ohne Fenster
- Terrasse ca. 6,70 m²
Weitere Informationen
Sonstiges
Zu der Wohnung gehört ein Keller.
Für die Gemeinschaft steht ein Fahrradkeller zur Verfügung
Stichworte
Anzahl der Badezimmer: 1, Balkon-Terrassen-Fläche: 6,70 m², 2 Etagen
Anbieter der Immobilie
Online-ID: 2n75c5q
Referenznummer: Niederneun14b
Finde Angebote wie dieses
Hier geht es zu unserem Impressum, den Allgemeinen Geschäftsbedingungen, den Hinweisen zum Datenschutz und nutzungsbasierter Online-Werbung.