Vonovia SE-Selbstständiger Vertriebspartner

Herr Adam Polke

*VERMIETET!* Stuttgart-Plieningen, toll geschnittene 3,5-Zimmer Wohnung mit Balkon!

€ 308.000
Kaufpreis
73,78 m²
Wohnfläche ca.
3,5
Zimmer

Der Anbieter dieses Objekts hat gegenüber der AVIV Germany GmbH als Betreiber dieses Online-Marktplatzes erklärt, nicht als Unternehmer im Sinne des § 1 KSchG zu handeln. Die im Verbraucherschutzrecht der Union verankerten Verbraucherrechte (insbesondere Informationspflichten und Rücktritts- bzw. Widerrufsrechte) finden auf den Vertrag zwischen dem Anbieter des Objekts und Ihnen (dem Interessenten) keine Anwendung.

Provisionsfrei
Gewerblicher Anbieter

Der Anbieter dieses Objekts hat gegenüber der AVIV Germany GmbH als Betreiber dieses Online-Marktplatzes erklärt, als Unternehmer im Sinne des § 1 KSchG zu handeln.

AdresseFilderhauptstraße 215
70599 Stuttgart 
(Plieningen)
Auf Karte ansehen

Preise & Kosten

Kaufpreis € 308.000 Hausgeld € 262,94 Preis/m² € 4.174,57 1 Stellplatz € 13.500

Provision für Käufer

provisionsfrei

Lage

Die Wohnung befindet sich in Stuttgart-Plieningen im Wohngebiet Chausseefeld. Durch die günstige Verkehrsanbindung erreichen Sie schnell und bequem die Stuttgarter Innenstadt. Auch Autobahn, Flughafen und die neue Messe Stuttgart liegen nur wenige Minuten mit dem PKW von Ihrer Haustür entfernt. Eine Vielzahl von...

Mehr anzeigen

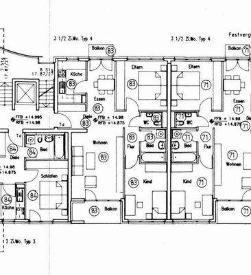
Die Wohnung

Bezug

VERMIETET

Derzeitige Nutzung

vermietet

  • Bad mit Wanne
  • Balkon
  • rollstuhlgerecht
  • Weitere Räume: Kelleranteil, Wasch-Trockenraum

Wohnanlage

  • Baujahr: 1994
  • Personenaufzug
  • 1 Stellplatz

Energie & Heizung

A+
A
B
C
D
E
F
G
H
0 25 50 75 100 125 150 175 200 225 250 +

Energieausweistyp

Verbrauchsausweis

Gebäudetyp

Wohngebäude

Baujahr laut Energieausweis

1995

Gültigkeit

seit 20.04.2018

Effizienzklasse

C

Endenergieverbrauch

97,00 kWh/(m²·a) - Warmwasser enthalten

Weitere Energiedaten

Energieträger

Gas

Heizungsart

Zentralheizung

Details

Objektbeschreibung

***WICHTIG*** BITTE BEACHTEN:
Hierbei handelt es sich um eine reine Kapitalanlage! Die Wohnung ist nicht zum Selbstbezug geeignet, da die Mieter einen erweiterten Kündigungsschutz vor Eigenbedarf bis zum 31.03.2032 genießen.


Das 4-stöckige Mehrfamilienhaus wurde ca. 1994 in massiver und in Top-moderner Bauweise...

Mehr anzeigen

Ausstattung

Die Ausstattung ist gut und solide. Diese außergewöhnliche Wohnung mit ihren 3,5-Zimmern ist in einem guten, leicht renovierungsbedürftigen Zustand. Licht dominiert das Wohnzimmer und den schönen Essbereich mit seiner Fensterfront.
Das Tageslichtbad ist hell gefliest und verfügt über eine Badewanne und einen...

Mehr anzeigen

Preisinformation

1 Stellplatz, Kaufpreis: 13.500,00 EUR
Ist-Mieteinnahmen pro Monat: 776,35 EUR

Weitere Informationen

Sonstiges
=== Energieträger laut Energieausweis: Gas ===
Zur Wohnung kann optional ein Duplexparker mit 2 PKW-Stellplätzen zu einem Preis von 27.000 EUR hinzu erworben werden. Dieser ist im Kaufpreis nicht enthalten!

Stichworte
Nutzfläche: 4,00 m², Anzahl der Schlafzimmer: 2, Anzahl der Badezimmer: 1, Anzahl...

Mehr anzeigen

Anbieter der Immobilie

Partner

Vonovia SE-Selbstständiger Vertriebspartner

im Durchschnitt  3,70  Sterne
(bei 85 Bewertungen)

Universitätsstr. 133, 44803 Bochum

user

Herr Adam Polke

Dein Ansprechpartner

Anbieter-Website Anbieter-Profil Anbieter-Impressum

Online-ID: 2n74q5a

Referenznummer: 36897-83

Finde Angebote wie dieses

imageimageimage

Hier geht es zu unserem Impressum, den Allgemeinen Geschäftsbedingungen, den Hinweisen zum Datenschutz und nutzungsbasierter Online-Werbung.