Wohnsinn GmbH

Herr Wohnsinn GmbH

Kontaktiere den Anbieter schriftlich, es ist keine Telefonnummer hinterlegt.

Erdgeschosswohnung mit Einbauküche in Köln Nippes

€ 710
Kaltmiete zzgl. NK
32 m²
Wohnfläche ca.
1
Zimmer

Der Anbieter dieses Objekts hat gegenüber der AVIV Germany GmbH als Betreiber dieses Online-Marktplatzes erklärt, nicht als Unternehmer im Sinne des § 1 KSchG zu handeln. Die im Verbraucherschutzrecht der Union verankerten Verbraucherrechte (insbesondere Informationspflichten und Rücktritts- bzw. Widerrufsrechte) finden auf den Vertrag zwischen dem Anbieter des Objekts und Ihnen (dem Interessenten) keine Anwendung.

Gewerblicher Anbieter

Der Anbieter dieses Objekts hat gegenüber der AVIV Germany GmbH als Betreiber dieses Online-Marktplatzes erklärt, als Unternehmer im Sinne des § 1 KSchG zu handeln.

AdresseStraße nicht freigegeben
50733 Köln 
(Nippes)
Auf Karte ansehen

Preise & Kosten

Kaltmiete € 710 Nebenkosten € 120 Heizkosten in Warmmiete enthalten Warmmiete € 830

Kaution

1.600,00

Lage

Das Haus befindet sich direkt zentral an der Neusser Straße in Nippes. Die Haltestelle Neusser Str./Gürtel ist fußläufig schnell erreichbar.
Nippes erstreckt sich von der Inneren Kanalstraße im Süden bis zum Gürtel im Norden, von der S-Bahn-Linie Nippes-Chorweiler im Westen bis zur Amsterdamer Str. im Osten und wurde groß...

Mehr anzeigen

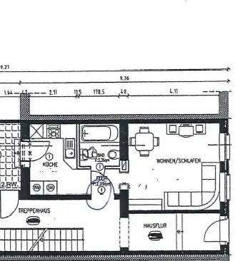
Die Wohnung

  • Einbauküche
  • Haustiere erlaubt

Details

Objektbeschreibung

Die angebotene Immobilie befindet sich im vorderen EG eines unter Denkmalschutz stehenden Altbaus aus dem Jahre 1898 in Köln Nippes.
Die Fassade wurde modernisiert und das Objekt befindet sich in einem sehr gepflegten Zustand. Die Wohnung wurde im Jahr 2024 saniert und modernisert.
Die Wohnung teilt sich auf in einen...

Mehr anzeigen

Ausstattung

- geräumige Aufteilung- Einbauküche bereits vorhanden-- saniertes Badezimmer mit Badewanne- eigenes Kellerabteil- große moderne Fenster.Dadurch ist die Wohnung tagsüber durchgehend sehr hell und akustisch weitgehend abgedichtet

Weitere Informationen

Sonstiges
In der Nebenkostenvorauszahlung ist bereits die Heizkostenvorauszahlung enthalten und diese wurde ausreichend kalkuliert.
Hinzu kommen noch für den Mieter die Strom - und Internetkosten. Die entsprechenden Verträge müssen umgehend nach Einzug mit den entsprechenden Versorgern selbstständig abgeschlossen...

Mehr anzeigen

Anbieter der Immobilie

Partner

Wohnsinn GmbH

im Durchschnitt  3,80  Sterne
(bei 4 Bewertungen)

Hansaring 61, 50670 Köln

user

Herr Wohnsinn GmbH

Dein Ansprechpartner

Kontaktiere den Anbieter schriftlich, es ist keine Telefonnummer hinterlegt.

Anbieter-Website Anbieter-Profil Anbieter-Impressum

Online-ID: 2n6yq5y

Referenznummer: wxEihi9zkwoQejGGxmwt

Finde Angebote wie dieses

imageimageimage

Hier geht es zu unserem Impressum, den Allgemeinen Geschäftsbedingungen, den Hinweisen zum Datenschutz und nutzungsbasierter Online-Werbung.