
GARANT Immobilien AG
Büro Ludwigsburg
071 ···
Nr. anzeigenPreise & Kosten
Provision für Käufer
5,95 % (inkl. MwSt.) inkl. MwSt.
Die Maklercourtage für den Käufer beträgt 5 % aus dem Kaufpreis zuzüglich der gesetzlichen MwSt., somit gesamt 5,95 %.
Lage
Die Immobilie liegt in bester Innenstadtlage von Leonberg. Einkaufsmöglichkeiten, Schulen, Kindergärten, Ärzte sowie öffentliche Verkehrsmittel sind fußläufig erreichbar. Die Nähe zu Stuttgart sorgt für eine hervorragende Anbindung und hohe Wohnqualität. Die Immobilie befindet sich in guter Lage von Leonberg, einer...
Das Haus
Kategorie
Einfamilienhaus
Baujahr
1962
Bezug
vermietet
Derzeitige Nutzung
vermietet
Energie & Heizung
Warum sehe ich diese Anzeige? – Du siehst diese Anzeige basierend auf Ihrer Navigation auf unserer Website und den Suchkriterien, die du verwendet hast.
Energieausweistyp
Verbrauchsausweis
Gebäudetyp
Wohngebäude
Baujahr laut Energieausweis
1962
Wesentliche Energieträger
Gas
Gültigkeit
seit 26.09.2018
Effizienzklasse
E
Endenergieverbrauch
142,20 kWh/(m²·a)
Weitere Energiedaten
Energieträger
Gas
Heizungsart
Zentralheizung
Details
Objektbeschreibung
Zum Verkauf steht eine attraktive Kapitalanlage in Leonberg, bestehend aus einem gepflegten Wohn- und Geschäftshaus mit nachhaltigem Ertragspotenzial. Die Liegenschaft vereint Wohnen und Gewerbe in ausgewogener Mischung und eignet sich ideal für langfristig orientierte Investoren.
Das Objekt wurde laufend saniert und...
Ausstattung
* attraktive Kapitalanlage mit Wohn- und Gewerbenutzung
* 12 gut vermietbare Wohnungen
* großzügige Gewerbeflächen mit vielseitigen Nutzungsmöglichkeiten
* laufend saniert kein Sanierungsstau
* gute und etablierte Lage in Leonberg
* solide Nachfrage nach Wohn- und Gewerbeflächen
* langfristiges...
Weitere Informationen
Sonstiges
Energieverbrauchsausweis
Energiekennwert: 142,20 kWh/(qm*a)
Energieeffizienz: Klasse E (<160)
Heizung: Zentralheizung mit Gas
Baujahr laut Energieausweis: 1962
5 x Garage, 7 x Stellplatz außen
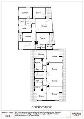
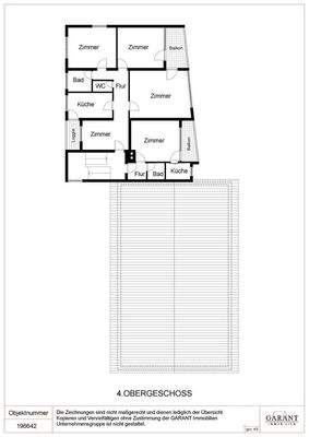
Aufteilung:
1. Gewerbefläche UG-EG ca. 165 m²
2. Gewerbefläche UG-EG ca. 447 m²
3...
Anbieter der Immobilie
Online-ID: 2n6ym54
Referenznummer: 196.642
Finde Angebote wie dieses
Hier geht es zu unserem Impressum, den Allgemeinen Geschäftsbedingungen, den Hinweisen zum Datenschutz und nutzungsbasierter Online-Werbung.