
Raiffeisen Immobilien Vermittlung GmbH
Frau Sophie Kühnel
+43 ···
Nr. anzeigenPreise & Kosten
Provision für Käufer
3% des Kaufpreises plus 20% USt.
Lage
Zillingdorf-Bergwerk bietet als ruhiger, gewachsener Ortsteil ein stabiles Umfeld für einen gastronomischen Betrieb mit regionalem Bezug. Die Lage ist geprägt von Einfamilienhäusern, landwirtschaftlichen Flächen und Betrieben im Nahbereich und eignet sich besonders für Konzepte Ausflugsverkehr oder gezielte regionale...
Gastronomie/Hotel
Kategorie
Restaurant
Energie & Heizung
Warum sehe ich diese Anzeige? – Du siehst diese Anzeige basierend auf Ihrer Navigation auf unserer Website und den Suchkriterien, die du verwendet hast.
Heizwärmebedarf (HWB)
135,00 kWh/(m²·a)
Gesamtenergieeffizienz (fGEE)
1,24
Weitere Energiedaten
Energieträger
Gas
Heizungsart
Zentralheizung
Details
Objektbeschreibung
Kurzbeschreibung
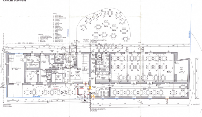
einladende, vielseitig nutzbare Liegenschaft mit großzügigem Gastgarten und Festsaal in ruhiger Lage von Zillingdorf-Bergwerk. Auf rund 461 m² Nutzfläche und ca. 2.543 m² Grundstück bieten sich attraktive Möglichkeiten für Gastronomie, Events oder alternative Nutzungen mit regionalem...
Weitere Informationen
Stichworte
Nutzfläche: 461,00 m², Bundesland: Niederösterreich
Anbieter der Immobilie
Online-ID: 2n6y85e
Referenznummer: 0001010973
Finde Angebote wie dieses
Hier geht es zu unserem Impressum, den Allgemeinen Geschäftsbedingungen, den Hinweisen zum Datenschutz und nutzungsbasierter Online-Werbung.