
Bauidee Projektplanung
Herr Jan Kosian
004 ···
Nr. anzeigenPreise & Kosten
Provision für Käufer
7,14% auf den Grundstückspreis
Lage
Rissen, ein Juwel im Westen Hamburgs, besticht durch seinen dörflichen Charme und die Nähe zur Elbe. Der Stadtteil vereint ruhiges Wohnen mit einer hervorragenden Infrastruktur. Diverse Einkaufsmöglichkeiten für den täglichen Bedarf, Ärzte und Apotheken sind bequem erreichbar und sorgen für eine hohe...
Das Haus
Kategorie
Doppelhaushälfte
Details
Objektbeschreibung
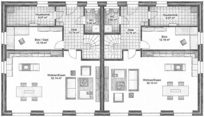
Modernes Bauprojekt für zwei Doppelhaushälften als Hamburger Stadtvilla. Gebaut wird im KfW40-Standard mit ca. 177 qm Wohnfläche.
Dieses Angebot bezieht sich auf die im Lageplan mit "TF1" gekennzeichnete Teilfläche.
Ausstattung und Technik werden auch gerne anhand Ihrer Vorstellungen und Vorgaben geplant.
Im...
Anbieter der Immobilie
Bauidee Projektplanung
Große Straße 41, 21465 Reinbek
Online-ID: 2n6xg5x
Referenznummer: 263
Finde Angebote wie dieses
Hier geht es zu unserem Impressum, den Allgemeinen Geschäftsbedingungen, den Hinweisen zum Datenschutz und nutzungsbasierter Online-Werbung.