

Trommer Immobilien
Herr Michael Trommer
034 ···
Nr. anzeigenPreise & Kosten
Provision für Käufer
3391,5 EUR inkl. MwSt.
Es besteht ein Maklerauftrag mit dem Verkäufer, mit Vereinbarung einer Maklerprovision in gleicher Höhe. (BGB §656c)
Lage
Die Körnerstraße gehört zum Wohnbereich am Sperlingsberg. Dieser Stadtteil wurde im Zeitraum um 1910 errichtet. Die Häuser zeichnen sich durch eine sehr solide Bauweise, mit einer Vielzahl an Stuckelementen und Ornamenten an den Fassaden aus. Kleine Vorgärten mit Grünflächen schaffen räumliche Breite im Straßenzug. Im Umfeld...
Die Wohnung
Kategorie
Maisonette
Wohnungslage
3. Geschoss
Bezug
01.07.2026
Derzeitige Nutzung
vermietet
Energie & Heizung
Warum sehe ich diese Anzeige? – Du siehst diese Anzeige basierend auf Ihrer Navigation auf unserer Website und den Suchkriterien, die du verwendet hast.
Energieausweistyp
Verbrauchsausweis
Gebäudetyp
Wohngebäude
Baujahr laut Energieausweis
1996
Wesentliche Energieträger
Gas
Gültigkeit
28.01.2022 bis 27.01.2032
Effizienzklasse
E
Endenergieverbrauch
149,17 kWh/(m²·a) - Warmwasser enthalten
Weitere Energiedaten
Energieträger
Gas
Heizungsart
Zentralheizung
Details
Objektbeschreibung
Die Wohnung befindet sich in einem 1996 sehr gut saniertem Mehrfamilienhaus mit 8 Eigentumswohnungen. Derzeit sind alle vermietet. Vor dem Haus sind kleine Gärten mit Grünzone. Hinter dem Haus ist ein Mietergarten. Hier kann die Wäsche noch an der Luft trocknen. Eine Gartenbank und ein Gartentisch stehen auch bereit. Hier...
Ausstattung
Türe auf und rein! Was Sie zuerst bemerken werden, ist die Helligkeit schon im Flur! Der Flur zum Wohnzimmer ist offengehalten, die Küchentür besitzt zudem ein Glaselement. Die Wohn- und Schlafräume sind mit hellem Laminat ausgestattet. Das Bad, mit Wanne und Fenster, ist komplett gefliest. Und wenn man aus dem Fenster schaut...
Preisinformation
Soll-Mieteinnahmen pro Jahr: 7.920,00 EUR
Ist-Mieteinnahmen pro Jahr: 6.840,00 EUR
Weitere Informationen
Sonstiges
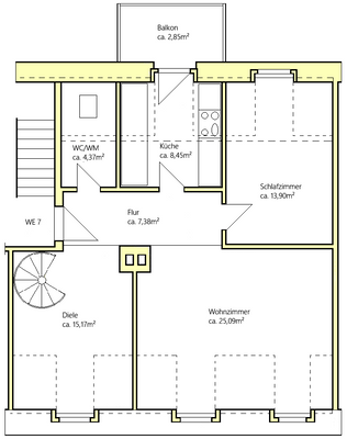
Das angegebene Baujahr des Hauses kann auf Grund fehlender Unterlagen abweichen. Alle im Exposé angegebenen Daten, Maße, Preise etc. erfolgen auf Vorlage und Aussage der Verkäufer. Eine Haftung für deren Vollständig- und Richtigkeit wird ausgeschlossen. Die Grundrisse im Exposé dienen nur zur Orientierung der...
Anbieter der Immobilie
Trommer Immobilien
Moritzstr. 4, 04600 Altenburg

Online-ID: 2n6wy5t
Referenznummer: 0245
Finde Angebote wie dieses
Hier geht es zu unserem Impressum, den Allgemeinen Geschäftsbedingungen, den Hinweisen zum Datenschutz und nutzungsbasierter Online-Werbung.