

HS Immobilien GmbH
Herr Haushammer
016 ···
Nr. anzeigenPreise & Kosten
Provision für Käufer
provisionsfrei
Abschreibung/Anlage
als Kapitalanlage geeignet
Lage
Das Objekt befindet sich in einer begehrten Wohngegend von Ravensburg, die durch ihre ruhige Atmosphäre und gleichzeitig zentrale Anbindung besticht. Einkaufsmöglichkeiten, Schulen, Kindergärten und öffentliche Verkehrsmittel sind in unmittelbarer Nähe und bequem zu Fuß erreichbar. Die malerische Altstadt von Ravensburg mit...
Die Wohnung
Wohnungslage
2. Geschoss
Bezug
2026
Wohnanlage
Energie & Heizung
Warum sehe ich diese Anzeige? – Du siehst diese Anzeige basierend auf Ihrer Navigation auf unserer Website und den Suchkriterien, die du verwendet hast.
Weitere Energiedaten
Energieträger
Elektro
Haustyp
KfW 40
Heizungsart
Fußbodenheizung, Luft-/Wasser-Wärmepumpe
Details
Objektbeschreibung
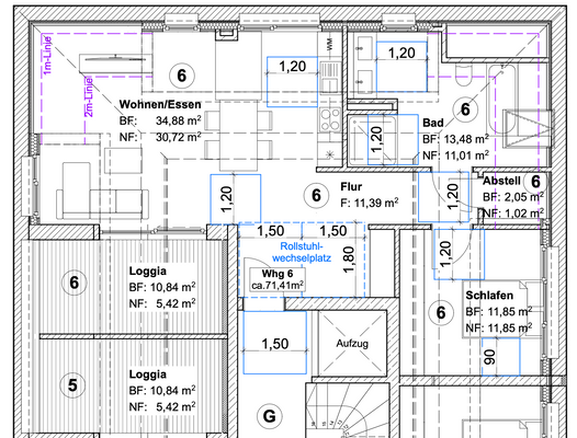
Diese exklusiv ausgestattete 2-Zimmer-Wohnung Nr. 6 befindet sich in einem modernen Neubau-Mehrfamilienhaus mit nur sechs Wohneinheiten und überzeugt durch ihre hochwertige Bauausführung, eine durchdachte Grundrissgestaltung sowie ihre erstklassige Wohnlage in Ravensburg.
Die Wohnung bietet ein zeitgemäßes Wohnkonzept mit...
Weitere Informationen
Aufteilung und Komfort
- Energieeffizienz: KfW 40 Standard – hohe Energieeffizienz mit niedrigen Betriebskosten.
- Hohe Abschreibungsmöglichkeit von 5% über 6 Jahre
- Parkmöglichkeiten: Stellplätze stehen zur Verfügung, um den Bewohnern einen komfortablen Zugang zu ermöglichen.
- Moderne...
Dokumente
Anbieter der Immobilie
HS Immobilien GmbH
Goethestraße 25, 85055 Ingolstadt

Online-ID: 2n6w256
Finde Angebote wie dieses
Hier geht es zu unserem Impressum, den Allgemeinen Geschäftsbedingungen, den Hinweisen zum Datenschutz und nutzungsbasierter Online-Werbung.