
Immowenk GmbH
Sandra Klaffenböck
015 ···
Nr. anzeigenPreise & Kosten
Provision für Käufer
provisionsfrei
Lage
Das Haus befindet sich in einer ruhigen Sackgasse in Straubing, mit einer beeindruckenden Fernsicht. Es bietet eine idyllische, grün geprägte Umgebung, die wenig Durchgangsverkehr aufweist und somit eine hohe Wohnqualität gewährleistet. Die Süd- bis Westlage ermöglicht sonnige Stunden auf Balkon oder Terrasse und sorgt für...
Das Haus
Bezug
sofort
Details
Objektbeschreibung
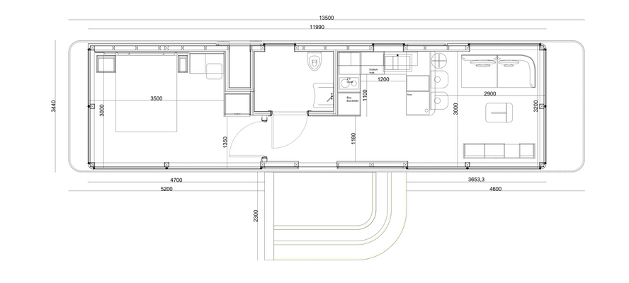
CAPSULE XL TINYHOUSE AUF GRUNDSTÜCK IN STRAUBING
(kein Grundstückskauf erforderlich)
. Eigennutzung oder Vermietung (ggf. sogar Airbnb & Booking)
. Ganzjährig (365 Tage) bewohnbar
* Baugenehmigungsfähig nach GEG
. Inkl. Möbel, vollständiger Infrastruktur & Grundstücksvorbereitung
. Steuerlich...
Ausstattung
Tinyhouse · atmungsaktive Tyvek-Abdichtungsbeschichtung auf allen Oberflächen · teilweise massive Holzverkleidung im Außenbereich · teilweise Verbundwerkstoff-Fassadenverkleidung · abgerundete, futuristische Design-Silhouette · großflächige Silikonglasfassade mit wärmedämmendem Isolierglas · Monoblock-Dachsystem mit...
Preisinformation
1 Stellplatz
Weitere Informationen
Sonstiges
Gerne sind wir für weitere Fragen und Informationen unter Tel. 0151-12369443 erreichbar.
Bei Kauf verpflichtet sich der Käufer an Immo Wohntraum Sandra Klaffenböck selbst. Immobilienmaklerin, eine Maklerprovision in der angegebenen Höhe nach notariellem Kaufvertrag zu leisten. Durch Ihre Objektanfrage...
Anbieter der Immobilie
Immowenk GmbH
Gablonzerstr. 23, 76185 Karlsruhe
Online-ID: 2n6vd5a
Referenznummer: 16682
Finde Angebote wie dieses
Hier geht es zu unserem Impressum, den Allgemeinen Geschäftsbedingungen, den Hinweisen zum Datenschutz und nutzungsbasierter Online-Werbung.