
HAWIELA Immobilien GmbH
Frau Annette Lehner
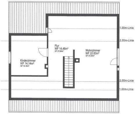
004 ···
Nr. anzeigenPreise & Kosten
Provision für Käufer
3,57 % vom Kaufpreis
Lage
Der charmante Ortsteil Schießen gehört zur Gemeinde Roggenburg im Landkreis Neu-Ulm im Regierungsbezirk Schwaben, Bayern.
Schießen liegt idyllisch in der sanften Landschaft Mittelschwabens, etwa 2 km nordnordöstlich des Kernorts Roggenburg, und ist durch die Kreisstraße NU 2 verkehrsgünstig verbunden.
Durch den Ort...
Das Haus
Kategorie
Einfamilienhaus
Baujahr
1926
Bezug
nach Vereinbarung
Energie & Heizung
Warum sehe ich diese Anzeige? – Du siehst diese Anzeige basierend auf Ihrer Navigation auf unserer Website und den Suchkriterien, die du verwendet hast.
Energieausweistyp
Bedarfsausweis
Gebäudetyp
Wohngebäude
Baujahr laut Energieausweis
1928
Wesentliche Energieträger
PELLET
Gültigkeit
bis 22.10.2035
Effizienzklasse
C
Endenergiebedarf
98,90 kWh/(m²·a)
Weitere Energiedaten
Energieträger
Pellets
Heizungsart
offener Kamin, Zentralheizung
Details
Objektbeschreibung
Ein Zuhause mit Seele - wo Charakter und modernes Wohnen eins werden.
Dieses außergewöhnliche Einfamilienhaus ist weit mehr als nur ein Gebäude - es ist ein liebevoll gepflegtes Zuhause mit besonderem Charakter.
Vor rund zehn Jahren wurde hier mit viel Gespür für Details kernsaniert.
Das Ergebniss ist der...
Ausstattung
Das steckt drin:
-Ursprungsbaujahr 1926
-Vor ca. 10 Jahren kernsaniert
-Sanierung auf gehobenem KfW (85) -Standard
-Stufenlose Gestaltung des Erdgeschosses ermöglicht komfortables Wohnen auch im Alter
-Weiße Kunststofffenster mit guter Wärmedämmung
-Moderne Pelletheizung mit großem Vorratslager als...
Preisinformation
2 Garagenstellplätze
Weitere Informationen
Sonstiges
Es liegt ein Energiebedarfsausweis vor.
Dieser ist gültig bis 22.10.2035.
Endenergiebedarf beträgt 98.90 kwh/(m²*a).
Wesentlicher Energieträger der Heizung ist Pellet.
Das Baujahr des Objekts lt. Energieausweis ist 1928.
Die Energieeffizienzklasse ist C.
Hier ist "schöner wohnen" in...
Anbieter der Immobilie
HAWIELA Immobilien GmbH
Donaustr. 1, 89275 Elchingen
Online-ID: 2n6u75y
Referenznummer: Fk-HAWIELA-280
Finde Angebote wie dieses
Hier geht es zu unserem Impressum, den Allgemeinen Geschäftsbedingungen, den Hinweisen zum Datenschutz und nutzungsbasierter Online-Werbung.