
Lohmann Immobilien GmbH & Co. KG
Frau Katja Lohmann
016 ···
Nr. anzeigenPreise & Kosten
Provision für Käufer
provisionsfrei
Lage
Die Eigentumswohnung befindet sich in zentraler Lage von Hamburg-Harvestehude fußläufig zur Außenalster.
Einkaufsmöglichkeiten des täglichen Bedarfs, Supermärkte, Cafés, Banken, Restaurants, der Isemarkt und vieles mehr sind nur wenige Minuten entfernt.
Die U-Bahn Stadtion Hoheluftbrücke ist direkt gegenüber.
Die...
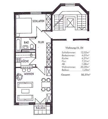
Die Wohnung
Wohnungslage
2. Geschoss
Bezug
sofort
Wohnanlage
Energie & Heizung
Warum sehe ich diese Anzeige? – Du siehst diese Anzeige basierend auf Ihrer Navigation auf unserer Website und den Suchkriterien, die du verwendet hast.
Energieausweistyp
Verbrauchsausweis
Gebäudetyp
Wohngebäude
Baujahr laut Energieausweis
1985
Wesentliche Energieträger
Fernwärme
Gültigkeit
29.08.2018 bis 28.08.2028
Effizienzklasse
B
Endenergieverbrauch
74,00 kWh/(m²·a)
Weitere Energiedaten
Energieträger
Fernwärme
Details
Objektbeschreibung
Zum Verkauf steht eine 2-Zimmer-Wohnung im 2. Obergeschoss des voll unterkellerten Wohnhauses aus dem Baujahr 1985.
Das Gebäude verfügt über einen 2025 umfangreich modernisierten Fahrstuhl. Im gleichen Jahr wurde auch die Vorderfassade bereits saniert.
Die Wohnung umfasst ein sonniges Wohnzimmer mit Balkon, einen...
Ausstattung
Die 2-Zimmer-Wohnung präsentiert sich in einem renovierungsbedürftigen Zustand und wird frei lieferbar, ohne Mietverhältnis übergeben.
In sämtlichen Wohnräumen sowie im Flur wurde ein Teppichboden verlegt.
Der Küchenbereich und das Vollbad befinden sich in einem dem Baujahr entsprechenden Zustand und bieten...
Weitere Informationen
Heizungsart:
Heizkoerper
Anbieter der Immobilie
Lohmann Immobilien GmbH & Co. KG
Kanzleistraße 1, 22609 Hamburg
Online-ID: 2n6sl5n
Referenznummer: 0104
Finde Angebote wie dieses
Hier geht es zu unserem Impressum, den Allgemeinen Geschäftsbedingungen, den Hinweisen zum Datenschutz und nutzungsbasierter Online-Werbung.