

Immobilien de Weerdt
Herr Dipl.-Kfm. Michael de Weerdt
049 ···
Nr. anzeigenPreise & Kosten
Warum sehe ich diese Anzeige? – Du siehst diese Anzeige basierend auf Ihrer Navigation auf unserer Website und den Suchkriterien, die du verwendet hast.
Lage
Die Wohnung liegt in einer, modernen Wohnanlage (Baujahr 2025), die durch ihre zentrale, aber dennoch angenehme Wohnlage besticht. Ein Aufzug ist im Gebäude vorhanden und sorgt für zusätzlichen Komfort.
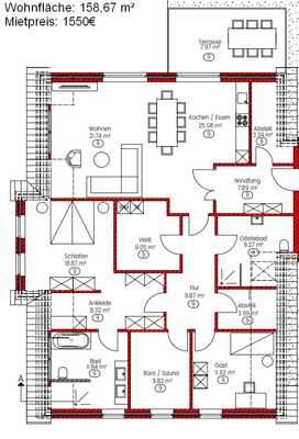
Die Wohnung
Bezug
sofort
Wohnanlage
Energie & Heizung
Warum sehe ich diese Anzeige? – Du siehst diese Anzeige basierend auf Ihrer Navigation auf unserer Website und den Suchkriterien, die du verwendet hast.
Energieausweistyp
Bedarfsausweis
Gebäudetyp
Wohngebäude
Baujahr laut Energieausweis
2023
Wesentliche Energieträger
Strom
Gültigkeit
24.10.2025 bis 24.10.2035
Effizienzklasse
A+
Endenergiebedarf
12,20 kWh/(m²·a)
Weitere Energiedaten
Heizungsart
Fußbodenheizung, Luft-/Wasser-Wärmepumpe
Details
Objektbeschreibung
Diese attraktive Wohnung befindet sich in einer modernen Neubau-Wohnanlage an der Kirchstraße im beliebten Stadtteil Papenburg-Untenende. Die Lage überzeugt durch ihre Nähe zum Hauptkanal mit vielfältigen Einkaufsmöglichkeiten, Cafés, Restaurants und weiteren Einrichtungen des täglichen Bedarfs, alles bequem fußläufig...
Ausstattung
-Die Ausstattung der Wohnung ist hochwertig und modern:
-Einbauküche im Mietpreis enthalten
-Großzügige Dachterrasse
-Abstellräume
-Hauswirtschaftsräume
-Aufzug ist vorhanden
-Fußbodenheizung
Weitere Informationen
Sonstiges
Die Wohnung wird neu renoviert (Neubauzustand) übergeben. Ein Energieausweis liegt nicht vor. Der Energieausweis wird spätestens bei der Fertigstellung des Neubaus vorliegen.
Stichworte
Stellplatz vorhanden, Anzahl der Badezimmer: 2
Dokumente
Anbieter der Immobilie
Immobilien de Weerdt
Hauptkanal rechts 23, 26871 Papenburg

Online-ID: 2n6rf5j
Referenznummer: 121
Finde Angebote wie dieses
Hier geht es zu unserem Impressum, den Allgemeinen Geschäftsbedingungen, den Hinweisen zum Datenschutz und nutzungsbasierter Online-Werbung.