
Matador Immobilien GmbH
Herr Alexander Nirschl
004 ···
Nr. anzeigenPreise & Kosten
Provision für Käufer
keine Provision!
Lage
Die Immobilie befindet sich in einer ruhigen Wohngegend von Walderbach, im Landkreis Cham.
Das Umfeld bietet eine gelungene Kombination aus ländlicher Ruhe und guter Infrastruktur. Einkaufsmöglichkeiten, Kindergarten, Schule und Freizeitangebote sind schnell erreichbar.
Durch die verkehrsgünstige Lage sind Cham, Roding...
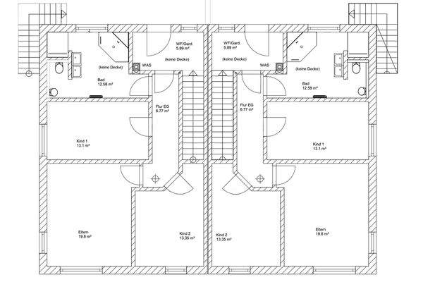
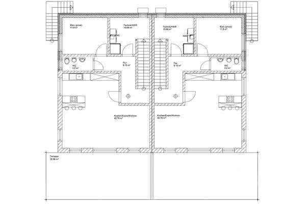
Das Haus
Kategorie
Doppelhaushälfte
Baujahr
2026
Bezug
Ab sofort!
Energie & Heizung
Warum sehe ich diese Anzeige? – Du siehst diese Anzeige basierend auf Ihrer Navigation auf unserer Website und den Suchkriterien, die du verwendet hast.
Energieausweistyp
Bedarfsausweis
Gebäudetyp
Wohngebäude
Baujahr laut Energieausweis
2026
Wesentliche Energieträger
LUFTWP
Gültigkeit
bis 31.01.2036
Effizienzklasse
A+
Endenergiebedarf
17,30 kWh/(m²·a)
Weitere Energiedaten
Heizungsart
Fußbodenheizung, Luft-/Wasser-Wärmepumpe
Details
Objektbeschreibung
Frisch fertiggestellt - stilvolles Wohnen in ruhiger Hanglage.
Diese Neubau-Doppelhaushälfte bietet modernen Wohnkomfort auf hohem Niveau und überzeugt durch eine durchdachte Raumaufteilung, energieeffiziente Technik und attraktive Hanglage.
Ein ideales Zuhause für Paare oder Familien, die Wert auf Qualität, Ruhe...
Ausstattung
In einer ruhigen und begehrten Wohnlage von Walderbach präsentiert sich diese soeben fertiggestellte Doppelhaushälfte (Neubau 2025-2026) als echtes Wohnjuwel für Liebhaber moderner Architektur und hochwertiger Ausstattung.
Die Immobilie verbindet zeitgemäße Energieeffizienz mit klarer, harmonischer Gestaltung und...
Preisinformation
3 Stellplätze
Weitere Informationen
Sonstiges
- Gesundes Wohnen durch massive Ziegelbauweise
- Fußbodenheizung in allen Wohnräumen
- Regenerative Energiegewinnung*
- Zwei Außenstellplätze
- Fenster mit 3-fach-Isolierverglasung
- Elektrische Rollläden
- Bodengleiche Dusche
*Regeneratives Heizen über eine moderne Luft-Wasser-Wärmepumpe...
Anbieter der Immobilie
Online-ID: 2n6r95e
Referenznummer: 25-83
Finde Angebote wie dieses
Hier geht es zu unserem Impressum, den Allgemeinen Geschäftsbedingungen, den Hinweisen zum Datenschutz und nutzungsbasierter Online-Werbung.