Clemens Trautmann Living Fertighaus GmbH Freie Handelsvertretung der Living Fertighaus GmbH

Herr/Frau Clemens Trautmann

Dein individuelles Traumhaus in der Feldberger Seenlandschaft - LivingHaus macht es möglich

€ 394.863
Kaufpreis
110 m²
Wohnfläche ca.
4
Zimmer
795 m²
Grundstücksfl. ca.

Der Anbieter dieses Objekts hat gegenüber der AVIV Germany GmbH als Betreiber dieses Online-Marktplatzes erklärt, nicht als Unternehmer im Sinne des § 1 KSchG zu handeln. Die im Verbraucherschutzrecht der Union verankerten Verbraucherrechte (insbesondere Informationspflichten und Rücktritts- bzw. Widerrufsrechte) finden auf den Vertrag zwischen dem Anbieter des Objekts und Ihnen (dem Interessenten) keine Anwendung.

Gewerblicher Anbieter

Der Anbieter dieses Objekts hat gegenüber der AVIV Germany GmbH als Betreiber dieses Online-Marktplatzes erklärt, als Unternehmer im Sinne des § 1 KSchG zu handeln.

AdresseStraße nicht freigegeben
17258 Feldberger Seenlandschaft 
(Fürstenhagen)
Auf Karte ansehen

Preise & Kosten

Kaufpreis € 394.863

Provision für Käufer

Bitte beachte, das Angebot kann bei Vertragsabschluss die Zahlung einer Provision beinhalten. Weitere Informationen erhältst Du vom Anbieter.

Lage

Die Feldberger Seenlandschaft bietet dir eine idyllische und naturnahe Umgebung, die perfekt für Familien und Naturliebhaber ist. In der näheren Umgebung findest du eine Vielzahl von Schulen, darunter die Grundschule in Feldberg, die mit guten Bewertungen für ihre engagierten Lehrer bekannt ist. Für die Kleinsten stehen...

Mehr anzeigen

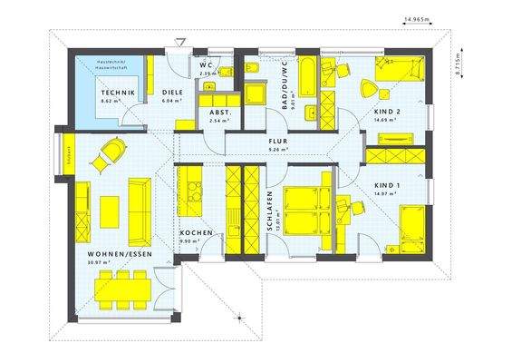
Das Haus

Kategorie

Bungalow

Baujahr

2026

  • Zustand: projektiert
  • Garten
  • Bad mit Fenster, Wanne und Dusche, Gäste-WC
  • Einbauküche
  • barrierefrei, als Ferienimmobilie geeignet

Energie & Heizung

A+
A
B
C
D
E
F
G
H
0 25 50 75 100 125 150 175 200 225 250 +

Energieausweistyp

Bedarfsausweis

Gebäudetyp

Wohngebäude

Baujahr laut Energieausweis

2026

Wesentliche Energieträger

Strom

Effizienzklasse

A+

Endenergiebedarf

18,00 kWh/(m²·a)

Weitere Energiedaten

Haustyp

KfW 40

Heizungsart

Fußbodenheizung, Luft-/Wasser-Wärmepumpe

Details

Objektbeschreibung

Dieses fantastische Einfamilienhaus wird ganz nach deinen Wünschen und Vorstellungen projektiert und bietet dir mit einer Wohnfläche von 110 m² und einem großzügigen Grundstück von 795 m² ausreichend Platz für deine Familie. Der beeindruckende Satteldachstil mit einem Kniestock von 2 Metern sorgt dafür, dass du dich in deinem...

Mehr anzeigen

Ausstattung

Das Einfamilienhaus von LivingHaus kommt mit einer durchdachten Grundausstattung, die keine Wünsche offenlässt. Du erhältst moderne Böden, edle Türen und stilvolle Sanitäranlagen, alles perfekt aufeinander abgestimmt und bereit für deinen Einzug. Die individuell geplante Küche sorgt dafür, dass du sofort loslegen kannst, ohne...

Mehr anzeigen

Weitere Informationen

Sonstiges
Das hier angebotene Grundstück ist im obigen Preis eingerechnet, es wird ohne zusätzliche Provision an einen Living Haus-Bauherren bereitgestellt.

Zusätzliche Baunebenkosten müssen noch hinzugerechnet werden, hierüber beraten wir dich gern.

Wir bieten auch interessante Finanzierungsmöglichkeiten...

Mehr anzeigen

Anbieter der Immobilie

user

Herr/Frau Clemens Trautmann

Dein Ansprechpartner

Anbieter-Website Anbieter-Profil Anbieter-Impressum

Online-ID: 2n6pp5y

Referenznummer: 30800-1503

Finde Angebote wie dieses

imageimageimage

Hier geht es zu unserem Impressum, den Allgemeinen Geschäftsbedingungen, den Hinweisen zum Datenschutz und nutzungsbasierter Online-Werbung.